

IFC Immobiliengesellschaft mbH
Herr Paul-Ludwig Blümel
034 ···
Nr. anzeigenPreise & Kosten
Provision für Käufer
Die Provision beträgt 3,5 % vom Kaufpreis (zzgl. der geltenden MwSt.).
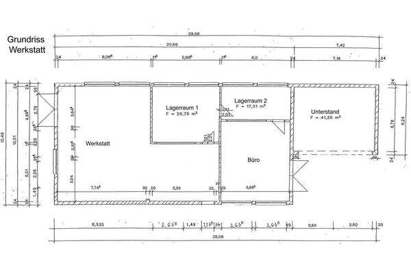
Das Haus
Kategorie
Mehrfamilienhaus
Geschosse
2 Geschosse
Baujahr
1930
Energie & Heizung
Warum sehe ich diese Anzeige? – Du siehst diese Anzeige basierend auf Ihrer Navigation auf unserer Website und den Suchkriterien, die du verwendet hast.
Energieausweistyp
Bedarfsausweis
Gebäudetyp
Wohngebäude
Baujahr laut Energieausweis
1930
Wesentliche Energieträger
Heizöl EL
Gültigkeit
16.07.2025 bis 16.07.2035
Effizienzklasse
D
Endenergiebedarf
113,20 kWh/(m²·a)
Weitere Energiedaten
Energieträger
Öl
Details
Objektbeschreibung
Zum Verkauf steht ein vielseitiges Immobilienensemble in Jessen (Elster), Ortsteil Holzdorf. Es besteht aus einem großzügigen Wohnhaus mit drei vermieteten Wohneinheiten und einem modernen Werkstattgebäude – ideal für Kapitalanleger, Selbstnutzer oder Handwerksbetriebe.
Das ca. 1930 erbaute Wohnhaus bietet insgesamt...
Ausstattung
Dach:
MFH:
ca. 2000 - Decke und Sparren gedämmt, gebrannte Tonziegel
Werkstatt:
ca. 2001 - 12 cm Dämmung, Schweißbahn
Fassade:
MFH:
Kalksandstein
ca. 2000 - gedämmt, geputzt, gestrichen
Werkstatt:
ca. 2000 - Poroton geputzt, Farb- und Strukturputz
Fenster:
MFH:
ca. 2000...
Weitere Informationen
Objektangaben:
Mehrfamilienhaus (MFH):
Baujahr:
ca. 1930
Raumaufteilung:
Erdgeschoss:
3 Zimmer, Küche, Bad, große Diele - ca. 137 m²
Obergeschoss:
3 Zimmer, Bad, Flur, Küche mit Zugang zum Wintergarten und Balkon - ca. 95 m² zzgl. Balkon
Dachgeschoss:
3 Zimmer, Bad, Küche...
Dokumente
Anbieter der Immobilie

Online-ID: 2l4a75m
Referenznummer: 1976
Finde Angebote wie dieses
Hier geht es zu unserem Impressum, den Allgemeinen Geschäftsbedingungen, den Hinweisen zum Datenschutz und nutzungsbasierter Online-Werbung.