
DAHLER Dresden
Frau Liane Shutov
004 ···
Nr. anzeigenPreise & Kosten
Provision für Käufer
3,57 % inkl. ges. MwSt. bezogen auf den Kaufpreis
Lage
Die angebotene Gewerbeeinheit liegt im Preußischen Viertel am Rand der Radeberger Vorstadt - nahe Elbe, Waldschlösschen und der Dresdner Heide. Umgeben von parkähnlichen Gärten und Gründerzeitvillen, verbindet die Lage historischen Charme mit moderner Lebensqualität. Trotz ruhiger Umgebung sind Sie nur wenige Schritte vom...
Büro-/Praxisfläche
Kategorie
Bürofläche
Baujahr
1910
Derzeitige Nutzung
vermietet
Energie & Heizung
Warum sehe ich diese Anzeige? – Du siehst diese Anzeige basierend auf Ihrer Navigation auf unserer Website und den Suchkriterien, die du verwendet hast.
Wärme
Energieausweistyp
Verbrauchsausweis
Gebäudetyp
Nicht-Wohngebäude
Baujahr laut Energieausweis
1910
Wesentliche Energieträger
GAS
Gültigkeit
bis 16.06.2035
Endenergieverbrauch (Wärme)
103,10 kWh/(m²·a)
Details
Objektbeschreibung
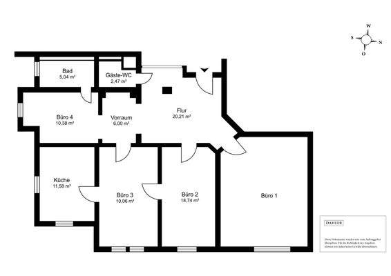
Die ca. 120 m² große Gewerbeeinheit befindet sich im Souterrain eines denkmalgeschützten Mehrfamilienhauses aus dem Jahr 1910, das 2015 hochwertig kernsaniert wurde. Das villenartige Gebäude in der Radeberger Vorstadt umfasst sieben Wohneinheiten und eine Gewerbeeinheit. Die Lage ist ideal: Ruhig in einer Seitenstraße, aber...
Ausstattung
_ Helles und gepflegtes Treppenhaus im historischen Stil führt zu großzügiger Gewerbeeinheit
_ Aktuell von einem Dienstleistungsunternehmen genutzt
_ Grundriss mit durchdachter Raumaufteilung
_ Eingangsbereich mit Gegensprechanlage
_ Ausreichend Platz und als Empfangs- oder Wartebereich nutzbar
_ Klassische...
Preisinformation
2 Tiefgaragenstellplätze, Kaufpreis je: 15.000,00 EUR
Nettorendite Ist in %: 4,91
Ist-Mieteinnahmen pro Jahr: 14.690,00 EUR
Weitere Informationen
Sonstiges
Nähere Informationen zur Immobilie finden Sie in unserem ausführlichen Exposé, welches wir Ihnen gern auf Anfrage zusenden.
Alle Angaben beruhen auf Auskünften des Eigentümers bzw. Verkäufers. Wir können daher keine Gewähr für die Richtigkeit der Verkäuferangaben übernehmen. Sollten Sie Vorkenntnis über...
Anbieter der Immobilie
Online-ID: 2l4ac5y
Referenznummer: DC-DRS1093
Finde Angebote wie dieses
Hier geht es zu unserem Impressum, den Allgemeinen Geschäftsbedingungen, den Hinweisen zum Datenschutz und nutzungsbasierter Online-Werbung.