

Avathus GmbH
Herr Bernd Müller
072 ···
Nr. anzeigenPreise & Kosten
Provision für Käufer
3,99 % inkl. MwSt. inkl. MwSt.
Lage
In idyllischer, ruhiger Lage am Ortsrand von Ölbronn, steht diese Immobilie.
Die Gemeinde liegt im Enzkreis am Rande des Nordschwarzwaldes und besteht aus den Ortsteilen Ölbronn und Dürrn, die sich durch eine dörfliche Struktur auszeichnen. Die Lage ist ideal für alle, die dem städtischen Trubel entfliehen und die...
Gastronomie/Hotel
Baujahr
1905
Energie & Heizung
Warum sehe ich diese Anzeige? – Du siehst diese Anzeige basierend auf Ihrer Navigation auf unserer Website und den Suchkriterien, die du verwendet hast.
Wärme
Energieausweistyp
Verbrauchsausweis
Gebäudetyp
Nicht-Wohngebäude
Wesentliche Energieträger
PELLET
Gültigkeit
14.04.2025 bis 13.04.2035
Endenergieverbrauch (Wärme)
173,70 kWh/(m²·a)
Weitere Energiedaten
Energieträger
Pellets
Details
Objektbeschreibung
Dieser idyllisch gelegene Landgasthof in beliebter Ausflugslage bietet alles, was das Herz von Gastronomen und Eventveranstaltern höherschlagen lässt. Eingebettet in eine malerische Landschaft, vereint das Anwesen rustikalen Charme mit modernem Potenzial. Dank zahlreicher Parkplätze und einer Garage ist die Erreichbarkeit...
Weitere Informationen
Stichworte
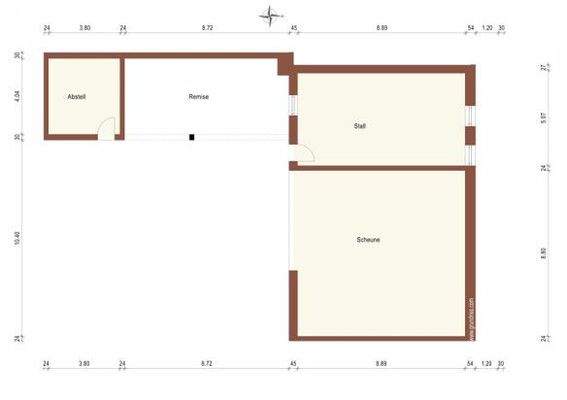
Wohnfläche: 107,67 m², Gesamtfläche: 1.777,00 m², Anzahl der Badezimmer: 1, Anzahl der separaten WCs: 4, Anzahl der Tagungsräume: 1, Bundesland: Baden-Württemberg
Anbieter der Immobilie

Online-ID: 2l4ca5q
Referenznummer: 2061
Finde Angebote wie dieses
Hier geht es zu unserem Impressum, den Allgemeinen Geschäftsbedingungen, den Hinweisen zum Datenschutz und nutzungsbasierter Online-Werbung.