

Loose-Immobilien
Frau Viola Loose
+49 ···
Nr. anzeigenPreise & Kosten
Provision für Käufer
3,57 % inkl. MwSt., vom Käufer zu tragen.
Lage
Die Lage dieses Hauses bietet die perfekte Kombination aus ruhiger Wohnatmosphäre und unmittelbarer Nähe zu zahlreichen Freizeitmöglichkeiten. Der idyllische Yachthafen sowie der feinsandige Strand der Ostsee (es ist auch ein Freistrand und ein Hundestrand in der Nähe) sind nur wenige Gehminuten entfernt.
Die von uns...
Das Haus
Kategorie
Bungalow
Baujahr
1963
Bezug
ab sofort
Energie & Heizung
Warum sehe ich diese Anzeige? – Du siehst diese Anzeige basierend auf Ihrer Navigation auf unserer Website und den Suchkriterien, die du verwendet hast.
Energieausweistyp
Bedarfsausweis
Gebäudetyp
Wohngebäude
Baujahr laut Energieausweis
1963
Wesentliche Energieträger
GAS
Gültigkeit
bis 11.08.2035
Effizienzklasse
F
Endenergiebedarf
170,70 kWh/(m²·a)
Weitere Energiedaten
Energieträger
Gas
Heizungsart
offener Kamin
Details
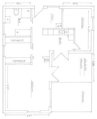
Objektbeschreibung
Zum Verkauf steht ein freistehender Winkelbungalow mit einem flach geneigten Satteldach. Das Dach ist mit blauen, glasierten Dachpfannen eingedeckt. Die Außenfassade des Hauses wurde gelb verputzt. Dazu kommen noch weiße doppelt verglaste Kunststofffenster.
Dieses Schmuckstück befindet sich auf einem ca. 650 m² großem...
Ausstattung
Das Haus wird derzeit von der Eigentümerin dauerhaft bewohnt und es ist kein Renovierungsstau vorhanden. Die Immobilie wird allerdings ohne Einbauküche verkauft.
Das Haus wurde 1963 erbaut und im Jahr 2000 komplett saniert und renoviert.
Einmal die wesentlichen Fakten zusammengefasst:
- Innenbereich...
Preisinformation
1 Garagenstellplatz
Weitere Informationen
Sonstiges
Bei Anfragen nennen Sie uns bitte Ihre kompletten Kontaktdaten (vollständigen Namen, komplette Anschrift und Telefonnummer), damit wir Ihnen schnell und unkompliziert antworten können.
Kontaktieren Sie uns gerne für weitere Informationen, Bilder oder einen Besichtigungstermin. Ihr Traum vom Eigenheim am Meer...
Anbieter der Immobilie

Online-ID: 2l4ft5p
Referenznummer: 14339a
Finde Angebote wie dieses
Hier geht es zu unserem Impressum, den Allgemeinen Geschäftsbedingungen, den Hinweisen zum Datenschutz und nutzungsbasierter Online-Werbung.