engelreal immobilien GmbH

Herr Peter Köhler

Kernsaniertes Schmuckstück - Top Altbau mit sonnigem Balkon - U3 Nähe

auf Anfrage
Kaufpreis
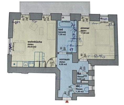
59,60 m²
Wohnfläche ca.
2
Zimmer
Finanzierung berechnen mit durchblicker

Der Anbieter dieses Objekts hat gegenüber der AVIV Germany GmbH als Betreiber dieses Online-Marktplatzes erklärt, nicht als Unternehmer im Sinne des § 1 KSchG zu handeln. Die im Verbraucherschutzrecht der Union verankerten Verbraucherrechte (insbesondere Informationspflichten und Rücktritts- bzw. Widerrufsrechte) finden auf den Vertrag zwischen dem Anbieter des Objekts und Ihnen (dem Interessenten) keine Anwendung.

Gewerblicher Anbieter

Der Anbieter dieses Objekts hat gegenüber der AVIV Germany GmbH als Betreiber dieses Online-Marktplatzes erklärt, als Unternehmer im Sinne des § 1 KSchG zu handeln.

AdresseStraße nicht freigegeben
1140 Wien 
(Penzing)
Auf Karte ansehen

Preise & Kosten

Kaufpreis auf Anfrage

Provision für Käufer

3% des Kaufpreises zzgl. 20% USt.

Lage

Nähe U3 Johnstraße

Die Wohnung

Kategorie

Terrassenwohnung

Wohnungslage

1. Geschoss

Bezug

nach Vereinbarung

  • Bad mit Fenster, Wanne und Dusche
  • Balkon
  • Einbauküche
  • Böden: Fliesenboden, Parkett
  • Zustand: gepflegt
  • Weitere Räume: Abstellraum
  • Anschlüsse: Kabelanschluss

Wohnanlage

  • Baujahr: 1900
  • Zustand: Altbau (bis 1945)
  • Personenaufzug

Energie & Heizung

Heizwärmebedarf (HWB)

157,00 kWh/(m²·a)

Weitere Energiedaten

Energieträger

Gas

Heizungsart

Fußbodenheizung, Zentralheizung

Details

Objektbeschreibung

Stilvolle Altbauwohnung mit südseitigem Balkon und Blick in den ruhigen Innenhof

Diese außergewöhnlich schöne Altbauwohnung vereint klassisches Flair mit modernem Wohnkomfort. 2016 wurde das gesamte Haus umfassend generalsaniert - inklusive Dachgeschoßausbau, Lifteinbau sowie moderner Hauszentralheizung mit...

Mehr anzeigen

Weitere Informationen

Stichworte
Süd-Balkon/Terrasse, Fahrradraum, Nutzfläche: 59,60 m², Anzahl der Badezimmer: 1, Anzahl der separaten WCs: 1, Anzahl Balkone: 1, Balkon-Terrassen-Fläche: 17,00 m², Bundesland: Wien, modernisiert: 2016

Anbieter der Immobilie

engelreal immobilien GmbH

Bierhäuselberggasse 75, 1140 WIEN

user

Herr Peter Köhler

Dein Ansprechpartner

Anbieter-Website Anbieter-Profil Anbieter-Impressum

Online-ID: 2l4kx5v

Referenznummer: OBGC20251016103639144279e064763

Finde Angebote wie dieses

imageimageimage

Günstige Immobilienfinanzierung einfach online berechnen

Persönliches Angebot berechnen

Hier geht es zu unserem Impressum, den Allgemeinen Geschäftsbedingungen, den Hinweisen zum Datenschutz und nutzungsbasierter Online-Werbung.