
VON POLL IMMOBILIEN Passau - Mathias Zank
Frau Carolin Claassens
004 ···
Nr. anzeigenPreise & Kosten
Provision für Käufer
Käuferprovision beträgt 3,57 % (inkl. MwSt.) des beurkundeten Kaufpreises
Lage
Da wo die Stadtteile Hals, Grubweg und Hacklberg aufeinander treffen, liegt dieses Anwesen nahe der Ilz und trotzdem hochwassersicher. Mit guter Verbindung sowohl in den Bayrischen Wald als auch nach Passau (5 PKW-Minuten). In 500 Meter ist man fußläufig in der Altstadt.
Die hervorragende Infrastruktur für Familien...
Das Haus
Kategorie
Mehrfamilienhaus
Baujahr
1962
Energie & Heizung
Warum sehe ich diese Anzeige? – Du siehst diese Anzeige basierend auf Ihrer Navigation auf unserer Website und den Suchkriterien, die du verwendet hast.
Energieausweistyp
Verbrauchsausweis
Gebäudetyp
Wohngebäude
Baujahr laut Energieausweis
1962
Wesentliche Energieträger
OEL
Gültigkeit
bis 13.10.2034
Effizienzklasse
F
Endenergieverbrauch
177,80 kWh/(m²·a)
Details
Objektbeschreibung
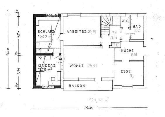
Dieses großzügige Zweifamilienhaus mit zwei Garagen bietet mit einer Wohnfläche von gut 200m² und einer Grundstücksgröße von 865 m² ausgezeichnete Voraussetzungen für Familien, Wohnen und Arbeiten, Mehrgenerationenwohnen oder die Kombination von Wohnen und Vermieten. Die im Jahr 2002 zuletzt modernisierte Immobilie überzeugt...
Ausstattung
Wohnfläche ca. 200 m²
Grundstücksgröße 865 m²
Fenster von 2001
Inbetriebnahme der aktuellen Heizung: 2001 (mit aktuellem Prüfbericht)
Solarthermie
Zweifamilienhaus mit zwei Einheiten
Separate Zugänge für beide Wohnungen
Insgesamt (2x 5) = zehn Zimmer
Vier bis sechs...
Weitere Informationen
Sonstiges
Es liegt ein Energieverbrauchsausweis vor.
Dieser ist gültig bis 13.10.2034.
Endenergieverbrauch beträgt 177.80 kwh/(m²*a).
Wesentlicher Energieträger der Heizung ist Öl.
Das Baujahr des Objekts lt. Energieausweis ist 1962.
Die Energieeffizienzklasse ist F.
GELDWÄSCHE: Als...
Anbieter der Immobilie
VON POLL IMMOBILIEN Passau - Mathias Zank
Heiliggeistgasse 1, 94032 Passau
Online-ID: 2l4pb5m
Referenznummer: 25 166 034
Finde Angebote wie dieses
Hier geht es zu unserem Impressum, den Allgemeinen Geschäftsbedingungen, den Hinweisen zum Datenschutz und nutzungsbasierter Online-Werbung.