Wohnzone Schlössl GmbH

Herr Daniel Nagel

NEU am Wolfgangsee: Doppelhaushälfte in Winkl / St. Gilgen

€ 928.000
Kaufpreis
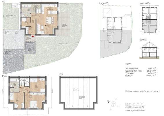
120,60 m²
Wohnfläche ca.
4,5
Zimmer
k.A.
Grundstücksfl.
Finanzierung berechnen mit durchblicker

Der Anbieter dieses Objekts hat gegenüber der AVIV Germany GmbH als Betreiber dieses Online-Marktplatzes erklärt, nicht als Unternehmer im Sinne des § 1 KSchG zu handeln. Die im Verbraucherschutzrecht der Union verankerten Verbraucherrechte (insbesondere Informationspflichten und Rücktritts- bzw. Widerrufsrechte) finden auf den Vertrag zwischen dem Anbieter des Objekts und Ihnen (dem Interessenten) keine Anwendung.

Gewerblicher Anbieter

Der Anbieter dieses Objekts hat gegenüber der AVIV Germany GmbH als Betreiber dieses Online-Marktplatzes erklärt, als Unternehmer im Sinne des § 1 KSchG zu handeln.

AdresseStraße nicht freigegeben
5340 Winkl 
Auf Karte ansehen

Preise & Kosten

Kaufpreis € 928.000

Provision für Käufer

Bitte beachte, das Angebot kann bei Vertragsabschluss die Zahlung einer Provision beinhalten. Weitere Informationen erhältst Du vom Anbieter.

Lage

Das Doppelhaus entsteht in Winkl, einem ruhigen Ortsteil von St. Gilgen am Wolfgangsee. Die Lage verbindet Natur und Lebensqualität: Der See mit Badeplätzen und Wassersportmöglichkeiten ist nur wenige Minuten entfernt, ebenso Wander- und Radwege. Im Ort finden sich Einkaufsmöglichkeiten, Gastronomie, Ärzte und Schulen...

Mehr anzeigen

Das Haus

Kategorie

Doppelhaushälfte

  • Zustand: Neubau
  • Terrasse

Details

Objektbeschreibung

In Winkl/St. Gilgen am Wolfgangsee entsteht ein modernes Doppelhaus mit zwei Einheiten. Jede Einheit bietet ca. 120 m² Wohnfläche mit 4 Zimmern und einem zusätzlichen Büro im Erdgeschoss. Großzügige Außenflächen - Terrasse oder Garten - sowie Carports direkt am Haus sorgen für hohen Wohnkomfort. Moderne Architektur, helle...

Mehr anzeigen

Weitere Informationen

Stichworte
Anzahl der Badezimmer: 1, Anzahl der separaten WCs: 2, Anzahl Terrassen: 1, Balkon-Terrassen-Fläche: 19,55 m², Gartenfläche: 140,47 m², Bundesland: Salzburg, Wohnungsnr.: 1

Anbieter der Immobilie

Partner

Wohnzone Schlössl GmbH

Herzog Odilo-Straße 4, 5310 MONDSEE

user

Herr Daniel Nagel

Dein Ansprechpartner

Anbieter-Website Anbieter-Profil Anbieter-Impressum

Online-ID: 2l4pd5l

Referenznummer: OBGC202509221150550070a5b36ea7b

Finde Angebote wie dieses

imageimageimage

Günstige Immobilienfinanzierung einfach online berechnen

Persönliches Angebot berechnen

Hier geht es zu unserem Impressum, den Allgemeinen Geschäftsbedingungen, den Hinweisen zum Datenschutz und nutzungsbasierter Online-Werbung.