

Immobiliengesellschaft der Sparkasse Rhein Neckar Nord mbH
Frau Sarah John
+49 ···
Nr. anzeigenPreise & Kosten
Provision für Käufer
provisionsfrei
Lage
Der Weinheimer Stadtteil Sulzbach liegt idyllisch an der Bergstraße und verbindet den Charme eines gewachsenen Ortskerns mit der Nähe zu urbanen Zentren. Durch die gute Anbindung an die Bundesstraße B3 sowie den S-Bahn-Haltepunkt Weinheim-Sulzbach sind sowohl die Weinheimer Innenstadt als auch die Metropolregion Rhein-Neckar...
Die Wohnung
Wohnanlage
Energie & Heizung
Warum sehe ich diese Anzeige? – Du siehst diese Anzeige basierend auf Ihrer Navigation auf unserer Website und den Suchkriterien, die du verwendet hast.
Energieausweistyp
Bedarfsausweis
Gebäudetyp
Wohngebäude
Baujahr laut Energieausweis
1971
Wesentliche Energieträger
Elektroenergie
Gültigkeit
29.01.2024 bis 29.01.2034
Effizienzklasse
A+
Endenergiebedarf
13,50 kWh/(m²·a)
Weitere Energiedaten
Energieträger
Elektro
Heizungsart
Fußbodenheizung, Luft-/Wasser-Wärmepumpe
Details
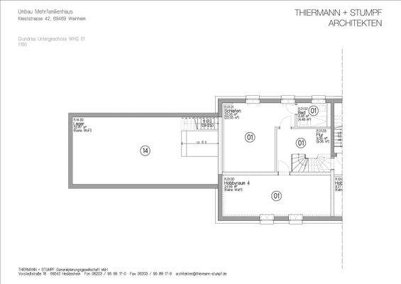
Objektbeschreibung
Das Haus - Kernsanierung auf Neubaustandard
Das ursprünglich 1971 errichtete Mehrfamilienhaus wurde im Jahr 2025 einer umfassenden Kernsanierung unterzogen und präsentiert sich nun auf dem Stand eines energieeffizienten Neubaus. Dabei wurde nicht nur die Optik modernisiert, sondern die gesamte Gebäudetechnik...
Ausstattung
Ausstattungsdetails der Wohnung
+ 4 Zimmer mit offener Wohnküche
+ Drei helle, flexibel nutzbare Zimmer (Schlafen, Kinder, Arbeiten)
+ Direkter Zugang von Wohn- und Essbereich zum Garten
+ Masterbad mit Tageslicht, bodengleicher Dusche & Echtglasabtrennung
+ Zweites modernes...
Weitere Informationen
Sonstiges
Verbraucherinformationen - https://s-immobilien-rnn.de/verbraucherinformationen/
Stichworte
Garage vorhanden, Stellplatz vorhanden, Anzahl der Badezimmer: 2, Anzahl der separaten WCs: 1, Anzahl Terrassen: 1, Bundesland: Baden-Württemberg, modernisiert: 2025
Online-ID: 2l4q55w
Referenznummer: 9629-SJ
Finde Angebote wie dieses
Hier geht es zu unserem Impressum, den Allgemeinen Geschäftsbedingungen, den Hinweisen zum Datenschutz und nutzungsbasierter Online-Werbung.