
MS Immobilien und Verwaltungs GmbH
Frau Sylvia Schuster
016 ···
Nr. anzeigenPreise & Kosten
Provision für Käufer
3% Käuferprovision incl. MwSt vom Kaufpreis
Lage
Der Ort Gadewitz gehört zur ehemaligen Kreisstadt Döbeln, es ist ein sehr gepflegter, ruhiger Ortsteil. Die Anbindung an den öffentlichen Nahverkehr ist mittels des Buses gegeben. Das Stadtzentrum von Döbeln erreicht man mit dem PKW innerhalb von 5 Minuten.
Döbeln mit seinen rund 25.000 Einwohnern ist eine belebte Stadt...
Das Haus
Geschosse
2 Geschosse
Baujahr
1899
Bezug
nach Vereinbarung
Energie & Heizung
Warum sehe ich diese Anzeige? – Du siehst diese Anzeige basierend auf Ihrer Navigation auf unserer Website und den Suchkriterien, die du verwendet hast.
Energieausweistyp
Bedarfsausweis
Gebäudetyp
Wohngebäude
Baujahr laut Energieausweis
2002
Wesentliche Energieträger
Öl
Gültigkeit
04.05.2023 bis 03.05.2033
Effizienzklasse
H
Endenergiebedarf
352,30 kWh/(m²·a)
Weitere Energiedaten
Energieträger
Öl
Heizungsart
Zentralheizung
Details
Objektbeschreibung
Objektbeschreibung
Besichtigungstermin ausschließlich nach telefonischer Vereinbarung unter 0162-65 97 303.
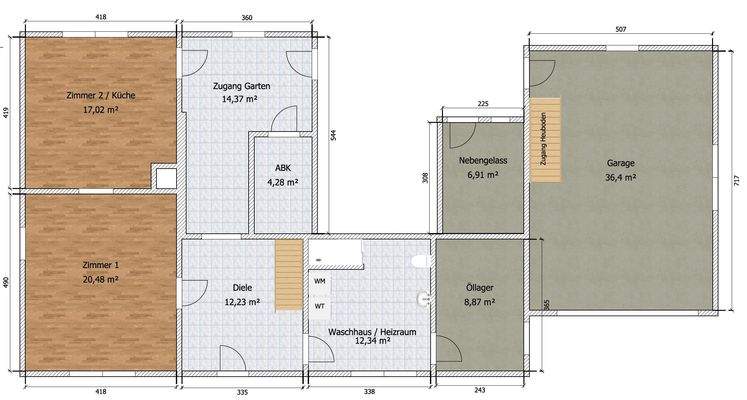
Das großzügige Einfamilienhaus bietet auf zwei Etagen sehr viel Wohnfläche. Im Erdgeschoss befinden sich zwei große Wohnräume, ein Waschhaus mit Dusche und WC sowie eine grozügige Diele mit Abstellkammer und...
Weitere Informationen
Besichtigungstermine
Besichtigungstermine ausschließlich nach telefonischer Vereinbarung unter 0162-65 97 303.
Stichworte
Sonstiges/Wohnen: Dachboden
Sonstiges: frei werdend
Anbieter der Immobilie
MS Immobilien und Verwaltungs GmbH
Hauptstraße 119, 04736 Waldheim
Online-ID: 2l4qm58
Referenznummer: 472-17
Finde Angebote wie dieses
Hier geht es zu unserem Impressum, den Allgemeinen Geschäftsbedingungen, den Hinweisen zum Datenschutz und nutzungsbasierter Online-Werbung.