

Kern Bauträger GmbH
Frau M. Barton
065 ···
Nr. anzeigenPreise & Kosten
Provision für Käufer
provisionsfrei
Lage
Die schöne und durchaus beachtlich große Baulücke befindet sich in Daleiden und liegt im Islek- in unmittelbarer Nähe (6,6 km) zur luxemburgischen Grenze. Ihrer kreativen Gartengestaltung steht nichts im Wege, Obstbäume zur Selbstversorgung oder doch lieber ein Pool, hier können Sie Ihre Träume verwirklichen!
Daleiden...
Das Haus
Kategorie
Bungalow
Baujahr
2026
Energie & Heizung
Warum sehe ich diese Anzeige? – Du siehst diese Anzeige basierend auf Ihrer Navigation auf unserer Website und den Suchkriterien, die du verwendet hast.
Energieausweistyp
Bedarfsausweis
Gebäudetyp
Wohngebäude
Effizienzklasse
A+
Endenergiebedarf
21,41 kWh/(m²·a)
Weitere Energiedaten
Energieträger
Elektro
Heizungsart
Fußbodenheizung, Zentralheizung
Details
Objektbeschreibung
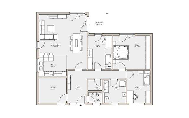
Kern-Haus bietet mit dem Bungalow Balance ein Traumhaus mit vielen Qualitäten - und alles auf einer Ebene. Der praktisch geschnittene Grundriss bietet zwei Kinderzimmer, ein Schlafzimmer und ein groÃYes Wohn- und Esszimmer mit offener Küche. Eine bedachte Terrasse lädt zum Genie en und Entspannen mit Freunden ein.
...
Ausstattung
4 Zimmer, offene Küche, Diele, Bad, WC, Hauswirtschaftsraum, Abstellraum
Das gezeigte Traumhaus im Überblick:
+ Schlüsselfertiges Massivhaus im Sinne der Ausstattungsbeschreibung "Edition 25"
+ Zukunftsorientierte Energieausstattung in Form einer Luft-Wasser-Wärmepumpe und Fußbodenheizung sowie einer...
Weitere Informationen
Sonstiges
Kern-Haus baut individuelle und massive Architektenhäuser zu einem attraktiven Preis-Leistungs-Verhältnis - und das bereits mit einer Erfahrung seit 1980. Bei Kern-Haus erhalten Sie unter anderem 10 Jahre Gewährleistung auf die wesentlichen Bauleistungen, bis zu 24 Monate Preissicherheit sowie eine dokumentierte...
Anbieter der Immobilie
Kern Bauträger GmbH
Waldstraße 17, 54340 Riol

Online-ID: 2l4u75c
Referenznummer: TR 5500
Finde Angebote wie dieses
Hier geht es zu unserem Impressum, den Allgemeinen Geschäftsbedingungen, den Hinweisen zum Datenschutz und nutzungsbasierter Online-Werbung.