

Makler Puttkammer & Team
Herr Thomas Zufall
0 4 ···
Nr. anzeigenPreise & Kosten
Provision für Käufer
Die Verkäufer- und Käufercourtage beträgt jeweils 2,5 % inkl. der gesetzlichen MwSt.
Siehe Bitte auch Sonstiges!
Lage
Ruhige und grüne Wohnlage in Buxtehude-HEDENDORF.
Die angebotene Wohnung befindet sich im beliebten Buxtehuder Ortsteil Hedendorf, einer ruhigen und familienfreundlichen Wohnlage mit dörflichem Charakter und hervorragender Anbindung an die Stadt Buxtehude sowie die Metropolregion Hamburg. Das Wohnumfeld ist geprägt von...
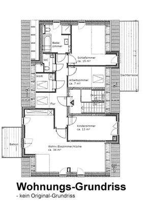
Die Wohnung
Kategorie
Penthouse
Wohnungslage
2. Geschoss
Bezug
Nach Vereinbarung
Wohnanlage
Energie & Heizung
Warum sehe ich diese Anzeige? – Du siehst diese Anzeige basierend auf Ihrer Navigation auf unserer Website und den Suchkriterien, die du verwendet hast.
Energieausweistyp
Bedarfsausweis
Gebäudetyp
Wohngebäude
Baujahr laut Energieausweis
2020
Wesentliche Energieträger
Gas
Effizienzklasse
A
Endenergiebedarf
40,20 kWh/(m²·a)
Weitere Energiedaten
Energieträger
Gas
Haustyp
KfW 70
Heizungsart
Fußbodenheizung
Details
Objektbeschreibung
Hochwertige 3,5-Zimmer-„PENTHOUSE“-Eigentumswohnung in der 2. Etage einer gepflegten Wohnanlage.
Wohngeld:
Ca. EUR 358/mtl. – laut Wirtschaftsplan 2023 (davon sind ca. EUR 229 umlagefähig auf einen möglichen Mieter)
Instandhaltungsrücklage:
Ca. EUR 17.000,00 per...
Weitere Informationen
Sonstiges
Die Gesamtcourtage in Höhe von 5 % inkl. der gesetzlichen Mehrwertsteuer auf den Kaufpreis ist mit dem Zustandekommen des Kaufvertrages (notarieller Vertragsabschluss) verdient und fällig. Käufer und Verkäufer schulden die Courtage jeweils in gleicher Höhe (2,5 %) aufgrund separater Vereinbarungen in Textform...
Dokumente
Anbieter der Immobilie
Makler Puttkammer & Team
Rudolf-Diesel-Straße 1, 21629 Neu Wulmstorf

Online-ID: 2l4uh5u
Referenznummer: 12685
Finde Angebote wie dieses
Hier geht es zu unserem Impressum, den Allgemeinen Geschäftsbedingungen, den Hinweisen zum Datenschutz und nutzungsbasierter Online-Werbung.