
Villa Noble S.L.
Herr Louis Wittner
003 ···
Nr. anzeigenPreise & Kosten
Provision für Käufer
Bitte beachte, das Angebot kann bei Vertragsabschluss die Zahlung einer Provision beinhalten. Weitere Informationen erhältst Du vom Anbieter.
Das Grundstück
Details
Objektbeschreibung
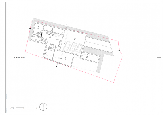
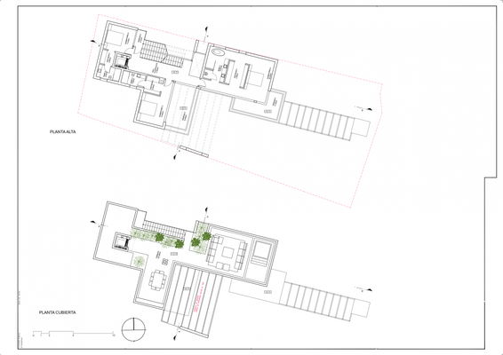
Eine einmalige Gelegenheit: Erwerben Sie ein gut gelegenes, 872 m² großes Grundstück mit einem vollständig lizenzierten Villenprojekt, nur wenige Schritte vom Mittelmeer entfernt in Marbesa, einer der etabliertesten Strandgemeinden im Osten Marbellas.
Die geplante Residenz erstreckt sich über vier Ebenen...
Anbieter der Immobilie
Villa Noble S.L.
Puerto Banus, Muelle Ribera E-1, Villa Noble, 29006 MARBELLA
Online-ID: 2l4v75g
Referenznummer: VN032509
Finde Angebote wie dieses
Hier geht es zu unserem Impressum, den Allgemeinen Geschäftsbedingungen, den Hinweisen zum Datenschutz und nutzungsbasierter Online-Werbung.