
Gruska Immobilien & Verwaltung GmbH
Herr J. Michael Gruska
036 ···
Nr. anzeigenPreise & Kosten
Provision für Käufer
3,57 % Maklercourtage inkl. gesetzlicher Umsatzsteuer
Lage
Die hier angebotene Eigentumswohnung befindet sich im Zentrum von Treffurt, einer Stadt im Wartburgkreis in Thüringen. Bekannt ist Treffurt für seinen historischen Altstadtkern mit vielen restaurierten Fachwerkbauten.
Die Stadt verfügt über eine gute Infrastruktur, es befinden sich die Staatliche Regelschule Treffurt...
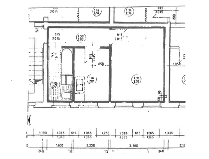
Die Wohnung
Wohnungslage
2. Geschoss
Bezug
vermietet
Wohnanlage
Energie & Heizung
Warum sehe ich diese Anzeige? – Du siehst diese Anzeige basierend auf Ihrer Navigation auf unserer Website und den Suchkriterien, die du verwendet hast.
Energieausweistyp
Verbrauchsausweis
Gebäudetyp
Wohngebäude
Baujahr laut Energieausweis
1985
Wesentliche Energieträger
Nah-/Fernwärme
Gültigkeit
21.08.2023 bis 20.08.2033
Effizienzklasse
C
Endenergieverbrauch
92,17 kWh/(m²·a) - Warmwasser enthalten
Weitere Energiedaten
Energieträger
Fernwärme
Heizungsart
Zentralheizung
Details
Objektbeschreibung
Die Eigentumswohnung befindet sich in einem gepflegten Mehrfamilienhaus mit achtzehn Wohneinheiten. Die Lage der Wohnung ist im 2. Obergeschoss. Das Wohnumfeld ist freundlich und ruhig.
Auf rund 32 m² Wohnfläche verteilen sich in der hier angebotenen Wohneinheit ein Zimmer, ein Flur, eine Küche und ein Bad mit...
Weitere Informationen
Besichtigungstermine
Nach Vereinbarung.
Sonstiges
Dieses Angebot ist freibleibend und unverbindlich. Irrtum und
Zwischenverwertung bleiben vorbehalten. Es wurde auf der
Grundlage der vom Eigentümer zur Verfügung gestellten Unterlagen, sowie dessen Angaben, ohne Gewähr gefertigt. Notar und Grundbuchkosten...
Dokumente
Anbieter der Immobilie
Gruska Immobilien & Verwaltung GmbH
Karlsplatz 20, 99817 Eisenach
Online-ID: 2l4vs5h
Finde Angebote wie dieses
Hier geht es zu unserem Impressum, den Allgemeinen Geschäftsbedingungen, den Hinweisen zum Datenschutz und nutzungsbasierter Online-Werbung.