
Seliger Immobilien GmbH
Frau Ursula Seliger, Dipl.Ing. (FH)
072 ···
Nr. anzeigenPreise & Kosten
Provision für Käufer
3,00 % vom Kaufpreis, zuzüglich der gesetzlichen Mehrwertsteuer, derzeit 19 %
Die Provision ist mit Abschluss des Kaufvertrages fällig.
Lage
Unsere Baugrundstücke befinden sich in Spielberg, im schönen Karlsbad.
"Die Gemeinde Karlsbad liegt im geographischen Dreieck der Fächerstadt Karlsruhe im Norden, der Goldstadt Pforzheim im Osten und der Markgrafenstadt Rastatt im Westen. Karlsbad ist eine Flächengemeinde, die über zahlreiche Institutionen und...
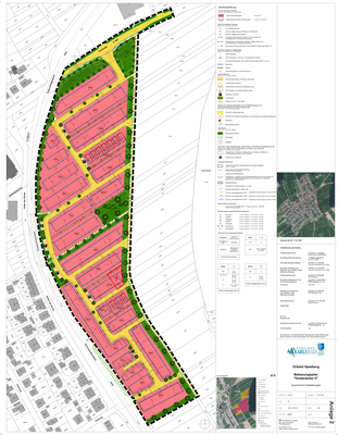
Das Grundstück
Details
Objektbeschreibung
Was für eine schöne Gelegenheit
in einem komplett neu entwickelten Baugebiet,
in reizvoller Ortsrandlage von Spielberg,
das letzte freie Baugrundstück direkt am Feldrand erwerben zu können.
Das Baugrundstück Nummer 54 umfasst etwa 450 qm Grundstücksfläche.
Es gilt ein...
Preisinformation
Wir möchten Ihnen diese hochwertigen und reizvollen Grundstücke zu einem fairen Preis anbieten, obwohl wir wissen, dass Baugrundstücke, auch im Karlsruher Umland, absolute Mangelware sind.
Es wird nach vollständiger Erschließung dieses Spielberger Neubaugebietes von einem Bodenrichtwert von etwa 550,-- Euro / qm bis...
Weitere Informationen
Besichtigungen
Wir hoffen, Ihr Interesse geweckt zu haben und freuen uns auf Sie!
Rufen Sie uns an. Gerne beantworten wir Ihre Fragen.
Falls gewünscht, können wir Ihnen den direkten Kontakt zu seriösen Bauanbietern herstellen - sowohl für Massivbau, als auch für Holzbau.
Ebenso kooperieren wir mit...
Anbieter der Immobilie
Seliger Immobilien GmbH
Thüringer Str. 3, 76228 Karlsruhe
Online-ID: 2l4xu5g
Finde Angebote wie dieses
Hier geht es zu unserem Impressum, den Allgemeinen Geschäftsbedingungen, den Hinweisen zum Datenschutz und nutzungsbasierter Online-Werbung.