
Sächsische Grundstücksauktionen AG
Firma SÄCHSISCHE GRUNDSTÜCKSAUKTIONEN AG
034 ···
Nr. anzeigenPreise & Kosten
Mindestpreis, Verkauf gegen Angebot
Provision für Käufer
siehe Hinweise
Lage
Weißwasser mit rd. 15.000 EW liegt im Nordosten des Freistaates. Bis Bautzen mit AS an die A4 sind es ca. 40 km, nach Bad Muskau mit Grenzübergang nach Polen ca. 10 km. Die B156 verläuft durch die Stadt. Weißwasser befindet sich inmitten der reizvollen Heide- und Teichlandschaft der Oberlausitz und grenzt an den UNESCO Global...
Die Immobilie
Zu diesem Angebot wurden vom Anbieter keine weiteren Daten hinterlegt. Für weitere Informationen bitte den Anbieter kontaktieren.
Nach Informationen fragenDetails
Objektbeschreibung
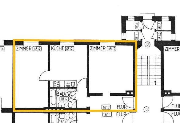
Denkmalgeschützter Altbau, Baujahr um 1911. Eine Teilsanierung fand ca. 1980 statt, nach 1990 wurde die Hauselektrik erneuert. Das Gemeinschaftseigentum befindet sich in einem sanierungs- und renovierungsbedürftigen Zustand. Die ETW Nr. 1812 befindet sich im Erdgeschoss hinten links und besteht aus 2 Zimmern, Küche, Wannenbad...
Weitere Informationen
HINWEISE:
NACHVERKAUF:
Das Objekt kam in der freihändigen, privaten und öffentlichen Versteigerung der SÄCHSISCHEN GRUNDSTÜCKSAUKTIONEN AG vom 28.11.2025 bis zum 02.12.2025 zum Aufruf und wurde nicht versteigert. Das Objekt kann exklusiv im Nachverkauf erworben werden. Kontaktieren Sie uns!
Der oben...
Dokumente
Anbieter der Immobilie

Sächsische Grundstücksauktionen AG
Grimmaische Straße 2 - 4, 04109 Leipzig
Online-ID: 2l55r5y
Referenznummer: 077-04-2025
Finde Angebote wie dieses
Hier geht es zu unserem Impressum, den Allgemeinen Geschäftsbedingungen, den Hinweisen zum Datenschutz und nutzungsbasierter Online-Werbung.