
SVS ImmoWert
Herr Savas Sahin
004 ···
Nr. anzeigenPreise & Kosten
Provision für Käufer
3 % inkl. Mehrwertsteuer von 19%.
Lage
Ludwigsau ist eine der flächengrößten Gemeinden Hessens und liegt im Städtedreieck Bad Hersfeld, Rotenburg und Bebra. Sie setzt sich aus dreizehn Ortsteilen mit rund 5.600 Einwohnern zusammen. Die Kreisstadt Bad Hersfeld ist etwa 5 km entfernt. Direkt im Ort Ludwigsau sind Grundschule, Kinderbetreuungseinrichtungen...
Das Haus
Baujahr
1970
Energie & Heizung
Warum sehe ich diese Anzeige? – Du siehst diese Anzeige basierend auf Ihrer Navigation auf unserer Website und den Suchkriterien, die du verwendet hast.
Energieausweistyp
Bedarfsausweis
Gebäudetyp
Wohngebäude
Baujahr laut Energieausweis
1970
Wesentliche Energieträger
OEL
Gültigkeit
bis 12.03.2034
Effizienzklasse
G
Endenergiebedarf
227,00 kWh/(m²·a)
Weitere Energiedaten
Energieträger
Öl
Heizungsart
offener Kamin, Zentralheizung
Details
Objektbeschreibung
Dieses Wohn- und Geschäftshaus wurde ca. im Jahr 1970 auf einem 931 m² großen Grundstück in Ludwigsau-Ersdorf massiv errichtet.
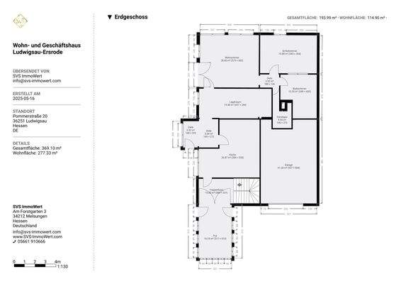
Das Erdgeschoss wurde früher zur Zubereitung von Speisen und Herstellung von Wurstprodukten genutzt. Die dafür vorhandene Küche und der danebenliegende Lagerraum sind deckenhoch gefliest. Des...
Ausstattung
- 1-2 Familienhaus mit Gewerbefläche
- Flachdach (saniert 2022)
- Öl-Zentralheizung aus 2003
- Innendämmung
- 8 Zimmer (Wohnräume)
- 3 Tageslichtbäder
- Küche mit großem Abstellraum
- Grünfläche hinter dem Haus
- Große Garage (für Tracker/Bus etc.) mit Ölabscheider
- Wohn- und Geschäftseinheit im...
Preisinformation
6 Stellplätze
1 Garagenstellplatz
Weitere Informationen
Sonstiges
Hinweis: Alle Objektdaten beruhen auf Angaben der Eigentümerseite und den vorliegenden Unterlagen. Trotz größter Sorgfalt sind Irrtümer vorbehalten. Alle Maßangaben sind Circa-Angaben.
Gerne können Sie einen Besichtigungstermin mit unserem Büro vereinbaren. Wir freuen uns auf Ihre...
Anbieter der Immobilie
SVS ImmoWert
Am Forstgarten 3, 34212 Melsungen
Online-ID: 2l56l5d
Referenznummer: B2002
Finde Angebote wie dieses
Hier geht es zu unserem Impressum, den Allgemeinen Geschäftsbedingungen, den Hinweisen zum Datenschutz und nutzungsbasierter Online-Werbung.