
Römmler Immobilien GmbH
Frau Laura Vogt
017 ···
Nr. anzeigenPreise & Kosten
Warum sehe ich diese Anzeige? – Du siehst diese Anzeige basierend auf Ihrer Navigation auf unserer Website und den Suchkriterien, die du verwendet hast.
Lage
Die angebotene Immobilie befindet sich in der historischen Stadt Freiberg, gelegen in der Region Mittelsachsen im Freistaat Sachsen. Die Stadt liegt ca. 40 km südwestlich von Dresden und ist über die Autobahn A4 und die Bundesstraßen B101 und B173 gut zu erreichen.
Das Objekt liegt unweit des Stadtzentrums der...
Die Wohnung
Wohnungslage
2. Geschoss
Bezug
sofort
Wohnanlage
Energie & Heizung
Warum sehe ich diese Anzeige? – Du siehst diese Anzeige basierend auf Ihrer Navigation auf unserer Website und den Suchkriterien, die du verwendet hast.
Energieausweistyp
Verbrauchsausweis
Gebäudetyp
Wohngebäude
Wesentliche Energieträger
Gas
Gültigkeit
18.04.2018 bis 17.04.2028
Effizienzklasse
D
Endenergieverbrauch
104,80 kWh/(m²·a)
Weitere Energiedaten
Energieträger
Gas
Heizungsart
Zentralheizung
Details
Objektbeschreibung
Die angebotene Wohnung befindet sich in einem gepflegten Mehrfamilienhaus aus dem Jahr 1903, das insgesamt sieben Wohneinheiten sowie eine Gewerbeeinheit umfasst.
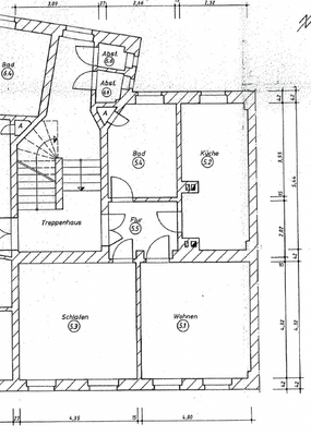
Die Wohnung liegt im 2. Obergeschoss und ist bequem über das Treppenhaus erreichbar. Beim Betreten gelangen Sie in einen zentralen Flur, von dem aus alle...
Ausstattung
?? Allgemeines
+ Baujahr: 1903
+ gepflegtes Mehrfamilienhaus mit 7 Wohneinheiten + 1 Gewerbeeinheit
+ Wohnung im 2. Obergeschoss
+ 2-Raum-Wohnung
+ Praktischer Grundriss mit zentralem Flur
??? Wohnräume
+ heller Laminatboden in allen Wohnräumen
+ gute Lichtverhältnisse durch große Fenster
?...
Weitere Informationen
Stichworte
Anzahl der Schlafzimmer: 1, Anzahl der Badezimmer: 1, Bundesland: Sachsen, 3 Etagen
Anbieter der Immobilie
Römmler Immobilien GmbH
Berthelsdorfer Str. 75, 09599 Freiberg
Online-ID: 2l58s5g
Referenznummer: 66
Finde Angebote wie dieses
Hier geht es zu unserem Impressum, den Allgemeinen Geschäftsbedingungen, den Hinweisen zum Datenschutz und nutzungsbasierter Online-Werbung.