

Immo-K Inh. Christian Knaub
Herr Christian Knaub
Kontaktiere den Anbieter schriftlich, es ist keine Telefonnummer hinterlegt.
Preise & Kosten
Provision für Käufer
2,975 % inkl. USt. des Kaufpreises
Lage
Die Wohnung befindet sich nahe am Kehler Rathaus und dessen Tram-Station.
Mitten in Kehl und doch ruhig gelegen, ist die Wohnung Ideal für Personen, die in Frankreich arbeiten oder öfters nach Straßburg wollen. Eine schnelle Verkehrsanbindung in Richtung A5 ist über die B28 natürlich auch möglich.
Von hier aus sind...
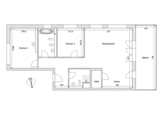
Die Wohnung
Wohnungslage
1. Geschoss
Bezug
Ab sofort
Derzeitige Nutzung
frei
Wohnanlage
Energie & Heizung
Warum sehe ich diese Anzeige? – Du siehst diese Anzeige basierend auf Ihrer Navigation auf unserer Website und den Suchkriterien, die du verwendet hast.
Energieausweistyp
Bedarfsausweis
Gebäudetyp
Wohngebäude
Baujahr laut Energieausweis
2013
Wesentliche Energieträger
Pellets
Gültigkeit
23.08.2017 bis 11.12.2025
Effizienzklasse
B
Endenergiebedarf
75,00 kWh/(m²·a)
Weitere Energiedaten
Energieträger
Pellets
Haustyp
KfW 55
Heizungsart
Zentralheizung
Details
Objektbeschreibung
Entdecken Sie diese moderne und geräumige Wohnung im Herzen von Kehl, welche neben einer angenehmen Aufteilung, praktischer Anbindungen und einem gehobenem Wohnkomfort punktet.
Der Wohn- und Essbereich, samt offener Küche, bietet mit über 35 m² Fläche genügend Platz für Ihre Einrichtungsvorstellungen.
Neben der...
Weitere Informationen
Austattung - Zustand
Das Mehrfamilienhaus, in dem sich die Wohnung befindet, wurde nach KFW-55 Baustandard errichtet und ist entsprechend gedämmt.
Die Wärmeerzeugung findet über eine zentrale Pelletheizung statt.
Die Wohnung befindet sich in einem teils renovierungsbedürftigem Zustand.
Neben einem frischen...
Anbieter der Immobilie
Immo-K Inh. Christian Knaub
Blumenstraße 15a, 77694 Kehl

Herr Christian Knaub
Dein Ansprechpartner
Kontaktiere den Anbieter schriftlich, es ist keine Telefonnummer hinterlegt.
Online-ID: 2l5945e
Referenznummer: K204
Finde Angebote wie dieses
Hier geht es zu unserem Impressum, den Allgemeinen Geschäftsbedingungen, den Hinweisen zum Datenschutz und nutzungsbasierter Online-Werbung.