

EDE INVEST GmbH & Co. KG
Herr Lukas Kemmer
+49 ···
Nr. anzeigenPreise & Kosten
Provision für Käufer
2,68 % inkl. MwSt. (2,25 % netto) inkl. MwSt.
Lage
5 Minuten Fußläufig - 450 Meter zu den Seeanlagen Dießen am Ammersee !
10 Minuten Fußläufig - 850 Meter zum Bahnhof Dießen
5 Minuten Fußläufig - 350 Meter zur historischen Dießener Altstadt mit Cafés, Einkaufsmöglichkeiten und Kunsthandwerk
Hervorragende Anbindung an München durch Bahn und Straße
Das Haus
Kategorie
Einfamilienhaus
Baujahr
2026
Bezug
Sofort
Energie & Heizung
Warum sehe ich diese Anzeige? – Du siehst diese Anzeige basierend auf Ihrer Navigation auf unserer Website und den Suchkriterien, die du verwendet hast.
Energieausweis: für diesen Gebäudetyp nicht notwendig
Details
Objektbeschreibung
Idyllisches Grundstück in Dießen-Fischerei - Leben, wo andere Urlaub machen
In begehrter Lage im malerischen Ortsteil Fischerei der Marktgemeinde Dießen am Ammersee befindet sich dieses außergewöhnliche Grundstück - eingebettet zwischen charmanten Bauernhäusern, grünen Wiesen und nur wenige Gehminuten vom Ufer des...
Ausstattung
- Grundstück mit Baugenehmigung
- Realgeteilt
- Zwei Einfamilienhäuser Genehmigt
- bis zu fünf Stellplätze möglich
- GRZ = 0,232 mit vorhandener Genehmigung
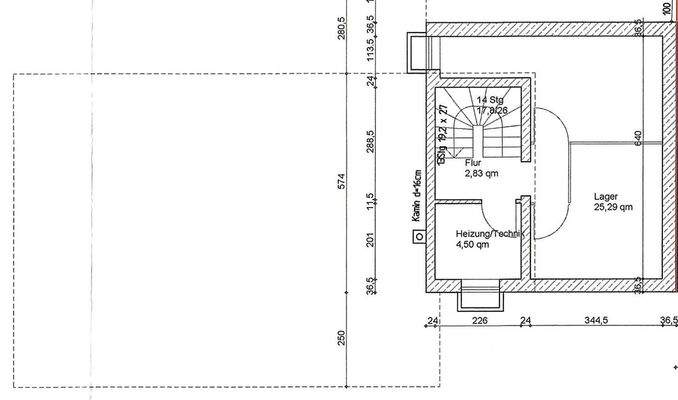
- Haus 1: ca.152,05m² Wohnfläche genehmigt
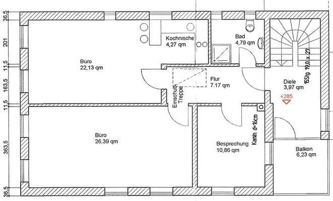
- Haus 2: ca. 136,49m² Wohnfläche genehmigt
- u.v.m.
Weitere Informationen
Sonstiges
Alle in diesem Exposé verwendeten Angaben beruhen auf Informationen von Dritten (z.B. Eigentümer, Hausverwaltung, etc.) und daher freibleibend und ohne jegliche Gewähr. Zahlenangaben sind immer als ca-Angaben zu verstehen. Irrtum, Änderungen, Zwischenverkauf oder Zwischenvermietung bleiben vorbehalten. Die...
Anbieter der Immobilie
EDE INVEST GmbH & Co. KG
Bavariaring 18, 80336 München

Online-ID: 2l5a55g
Referenznummer: 5541_1
Finde Angebote wie dieses
Hier geht es zu unserem Impressum, den Allgemeinen Geschäftsbedingungen, den Hinweisen zum Datenschutz und nutzungsbasierter Online-Werbung.