
Boom Living GmbH
Herr Nikita Neznamov
+43 ···
Nr. anzeigenPreise & Kosten
Provision für Käufer
3% des Kaufpreises zzgl. 20% USt.
Lage
Diese Immobilie liegt in einer begehrten Wohngegend am Migazziplatz und bietet eine ausgezeichnete Lage. Die U4/U6-Station Längenfeldgasse ist nur wenige Gehminuten entfernt, was eine erstklassige Verkehrsanbindung gewährleistet. Zusätzlich befinden sich diverse Geschäfte des täglichen Bedarfs, Restaurants und Cafés in...
Das Haus
Kategorie
Villa
Baujahr
1889
Details
Objektbeschreibung
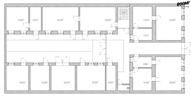
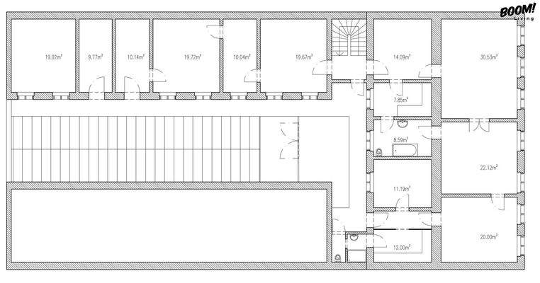
Zum Verkauf steht ein charmantes Fuhrwerkerhaus, dessen historische Ausstrahlung bis ins Jahr 1889 zurückreicht.
Mit einer großzügigen Wohnfläche von ca. 589 m² und einer Grundstücksfläche von rund 547 m² bietet dieses Anwesen eine beeindruckende Grundlage für verschiedenste Nutzungsmöglichkeiten - vom stilvollen...
Weitere Informationen
Stichworte
Nutzfläche: 589,00 m², Anzahl der Badezimmer: 2, Anzahl der separaten WCs: 2, Bundesland: Wien, 2 Etagen
Anbieter der Immobilie
Boom Living GmbH
Kärntner Straße 12, 1010 WIEN
Online-ID: 2l5c55f
Referenznummer: OBGC202508211650225604a03a6b748
Finde Angebote wie dieses
Günstige Immobilienfinanzierung einfach online berechnen
Persönliches Angebot berechnenWarum sehe ich diese Werbung? – Du siehst diese Werbung basierend auf Deiner Navigation auf unserer Website und der von Dir verwendeten Suchkriterien.
Diese Werbung wird bezahlt von durchblicker
Werbung melden
Hier geht es zu unserem Impressum, den Allgemeinen Geschäftsbedingungen, den Hinweisen zum Datenschutz und nutzungsbasierter Online-Werbung.