
Engel & Völkers Gewerbe Berlin GmbH & Co. KG
Team Industrie & Logistik
+49 ···
Nr. anzeigenPreise & Kosten
Provision für Käufer
Provisionspflichtig für den Käufer!
Lage
Die Immobilie befindet sich im Stadtteil Charlottenburg unweit des Mierendorffplatzes und nahe dem Goslarer Ufer, mit seinem schönen grünen Goslarer Park. Das Umfeld ist besonders von Wohnhäusern geprägt, in denen sich vereinzelt Firmen niedergelassen haben. Kleine Läden und Restaurants zeichnen das Bild dieser urbanen...
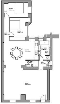
Büro-/Praxisfläche
Baujahr
1900
Energie & Heizung
Warum sehe ich diese Anzeige? – Du siehst diese Anzeige basierend auf Ihrer Navigation auf unserer Website und den Suchkriterien, die du verwendet hast.
Energieausweistyp
Verbrauchsausweis
Gebäudetyp
Nicht-Wohngebäude
Baujahr laut Energieausweis
1900
Gültigkeit
seit 06.06.2019
Anbieter der Immobilie

Engel & Völkers Gewerbe Berlin GmbH & Co. KG
Online-ID: 2l5gz5m
Referenznummer: O211857/G1/E1/F2
Finde Angebote wie dieses
Hier geht es zu unserem Impressum, den Allgemeinen Geschäftsbedingungen, den Hinweisen zum Datenschutz und nutzungsbasierter Online-Werbung.