
Zwickauer Wohnungsbaugenossenschaft eG
Unser Vermietungsteam
(03 ···
Nr. anzeigenPreise & Kosten
Warum sehe ich diese Anzeige? – Du siehst diese Anzeige basierend auf Ihrer Navigation auf unserer Website und den Suchkriterien, die du verwendet hast.
Lage
Kaum ein anderer Stadtteil steht so für nobles und geschmackvolles Wohnen wie Weißenborn. Und Weißenborn liegt näher am Stadtzentrum als man glaubt. Blickt man von einem der großzügigen Balkone, mit denen unsere modernen Wohnungen ausgestattet sind, drängt sich die Frage auf: Warum den Urlaub anderswo verbringen? Man wohnt...
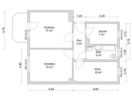
Die Wohnung
Wohnungslage
3. Geschoss
Bezug
sofort
Wohnanlage
Energie & Heizung
Warum sehe ich diese Anzeige? – Du siehst diese Anzeige basierend auf Ihrer Navigation auf unserer Website und den Suchkriterien, die du verwendet hast.
Energieausweistyp
Verbrauchsausweis
Gebäudetyp
Wohngebäude
Wesentliche Energieträger
Nahwärme
Endenergieverbrauch
60,70 kWh/(m²·a)
Details
Objektbeschreibung
Mieter, welche eine kleine überschaubare Wohnanlage von viel Grün umgeben schätzen, werden den besonderen Reiz von Weißenborn genießen.
Es ist eine Freude, in dieser ruhigen Siedlung einfach spazieren zu gehen. Zwischen den Häusern, die von geschmackvoll angelegten und gepflegten Grünanlagen eingesäumt werden. Oder...
Ausstattung
Schon gleich nach dem Betreten der Wohnung fällt Ihnen sicher die Gegensprechanlage ins Auge. Mit Ihr wird das Öffnen der Haustür zum Kinderspiel.
Hochwertige und strapazierfähige Boden- und Designbeläge veredeln sämtliche Wohnräume. Bad und Küche verfügen selbstverständlich über schicke Fliesen und moderne...
Weitere Informationen
Sonstiges
zzgl. Genossenschaftsanteile
Stichworte
Anzahl Balkone: 1
Sonstiges/Wohnen: Dachboden
Anbieter der Immobilie
Online-ID: 2l5jj5e
Referenznummer: 6381.630.2.41
Finde Angebote wie dieses
Hier geht es zu unserem Impressum, den Allgemeinen Geschäftsbedingungen, den Hinweisen zum Datenschutz und nutzungsbasierter Online-Werbung.