Version: 8.25.1Navigation überspringen
767 €
1 Zimmer  •  33 m²  •  11. Geschoss
Immowelt logo

Studio zur Miete - Erstbezug
767 €
1 Zimmer  •  33 m²  •  11. Geschoss

DC-FLATS: Exklusives Neubau-Apartment bei der UNO-City - Erstbezug!

DC-FLATS - HIGH END APARTMENTS - ERSTBEZUG
English version below

Bitte beachten Sie: Die dargestellten Fotos sind Beispielbilder und können von der tatsächlichen Wohnung abweichen.

. 17 Stockwerke gesamt, Terrassen im EG und 17. Stock
. 1-3 Zimmer Wohnungen
. 31 m2 - 92 m2
. EUR 670 - EUR 2.530
. Provisionsfrei

Modern. Smart. Exklusiv.
Die DC FLATS befinden sich in Bestlage des 22. Bezirks nahe der UNO-City, direkt an der Donauinsel gelegen und unweit zur Wiener Innenstadt in einem 17.-stöckigen neu errichteten Tower. Stephansdom in nur 10 min erreichbar.

Die Liste aller verfügbaren Wohnungen senden wir Ihnen gerne auf Wunsch.

Ob kompaktes City-Apartment, Business Wohnung oder Familienoase jede Einheit ist ein Unikat und steht für höchste Wohnqualität.

HIGHLIGHTS AUF EINEN BLICK
. Smarte Grundrisse
. Erstbezug
. Deckenkühlung
. Fußbodenheizung
. Hochwertige, moderne Ausstattung
. Bodentiefe öffenbare Fenster
. Edler Parkettboden
. Designerküche mit Markengeräten
. Tolle Infrastruktur
. Naherholungsgebiet "Donauinsel" direkt vor der Tür
. Geschäfte für den täglichen Bedarf fußläufig erreichbar (Bipa, Billa, Hofer, etc.)
. U1 vor der Türe

Garagenplätze in der hauseigenen Tiefgarage anmietbar
. PKW-Stellplatz € 150,00
. E-Stellplatz € 180,00
. Motorrad-Stellplatz € 75,00
(alle Preise brutto)
. Besuchergarage vorhanden

GRÄTZL & FREIZEIT
. UNO City - urbanes Wohnen mit internationalem Flair und idealer Anbindung
. Donauinsel direkt vor der Tür - die perfekte Lage für Sport, Strandbars, Restaurants und Freizeitangebote
. Innenstadt rasch erreichbar über die U1
. Donau Zentrum Westfield für Shopping, Gastronomie und Entertainment

SEHR GUTE ÖFFENTLICHE VERKEHRSANBINDUNG
. Autobus 20A
. U1 Kaisermühlen, Vienna International Center

VERTRAGSBEDINGUNGEN
. Befristung: 5 Jahre
. Kündigungsverzicht: 12 Monate
. Kündigungsfrist: 3 Monate
. benötigtes Mindestnettoeinkommen (Haushalt): 3-fache Bruttomiete

ERSTZAHLUNG
. Kaution: 3 Monatsmieten
. erste Monatsmiete

WEITERE MONATLICHE KOSTEN
. Strom wird nach Verbrauch direkt vom Energiedienstleister abgerechnet
. Akonto Heizung € 1,51/m² im Monat
. Akonto Kühlung € 0,17/m² im Monat

Gerne informieren wir Sie auf Anfrage ausführlicher und gehen dabei individuell auf Ihre Wünsche ein, um die Wohnung in den DC Flats zu finden, die perfekt zu Ihnen passt.

WIR SIND IHR MAKLER

Herr Robert Fried
Mobil: +43 664 88 296 010
robert.fried@hubner-immobilien.com

Frau Kerstin Fried
Mobil: +43 664 88 730 881
kerstin.fried@hubner-immobilien.com

"Wir weisen darauf hin, dass wir bei der Vermietung dieser Wohnung nicht als Doppelmakler tätig sind, sondern ausschließlich im Auftrag des Vermieters handeln. Aus diesem Grund bestätigen wir, dass unsere Tätigkeit für Sie provisionsfrei ist."



English Version

DC-FLATS - HIGH-END APARTMENTS - FIRST RENTAL

Please note: The photos shown are examples and may differ from the actual apartment.

. 17 floors in total, terraces on the ground floor and 17th floor
. 1-3 room apartments
. 31 m² - 92 m²
. EUR 670 - EUR 2.530
. no commission

Modern. Smart. Exclusive.
DC FLATS are situated in a prime location in Vienna's 22nd district, close to the UNO City, directly at the Donau Island and just a short distance from the city center, in a newly built 17-floor tower. St. Stephen's Cathedral can be reached in just 10 minutes.

We will be happy to send you a full list of available apartments upon request.

Whether a compact city apartment, business flat or family retreat - each unit is unique and represents the highest residential quality.

HIGHLIGHTS AT A GLANCE
. Smart floor plans
. First rental
. Ceiling cooling
. Underfloor heating
. High-quality modern finishes
. Floor-to-ceiling operable windows
. Elegant parquet flooring
. Designer kitchen with branded appliances
. Excellent infrastructure
. Danube Island recreation area right on the doorstep
. Daily shopping needs within walking distance (e.g. Bipa, Billa, Hofer)
. U1 metro line directly close to the building

Parking spaces available for rent in-house underground garge:
. Car parking space € 150,00
. E-car parking space € 180,00
. Motorcycle parking space € 75,00
(all prices incl. VAT)
. Visitor parking available

NEIGHBORHOOD & LEISURE
. UNO City - urban living with international flair and perfect connectivity
. Donau Island directly at your doorstep - ideal for sports, beach bars, restaurants and leisure activities
. City center quickly accessible via the U1 metro line
. Westfield Donau Zentrum for shopping, dining and entertainment

EXCELLENT PUBLIC TRANSPORT CONNECTIONS
. Bus line 20A
. U1 Kaisermühlen, Vienna International Center (VIC)

CONTRACT TERMS
. Fixed-term contract: 5 years
. Waiver of termination by tenant: 12 months
. Notice period: 3 months
. Required minimum net household income: 3× gross monthly rent

UPFRONT PAYMENT
. Security deposit: 3 gross monthly rents
. First month's rent

ADDITIONAL MONTHLY COSTS
. Electricity billed directly by the energy provider based on consumption
. Heating advance payment: € 1.51/m² per month
. Cooling advance payment: € 0.17/m² per month

We will be happy to provide you with further details upon request and assist you individually in finding the apartment at DC Flats that suits you perfectly.

YOUR REAL ESTATE AGENTS
Mr. Robert Fried
Mobile: +43 664 88 296 010
robert.fried@hubner-immobilien.com

Mrs. Kerstin Fried
Mobile: +43 664 88 730 881
kerstin.fried@hubner-immobilien.com

"We would like to point out that we are not acting as a dual agent in the letting of this apartment, but exclusively on behalf of the landlord. Therefore, we confirm that our services are commission-free for you."
Angaben gemäß gesetzlichem Erfordernis:
Miete 767,32 zzgl 10% USt.
Betriebskosten 96,31 zzgl 10% USt.
Umsatzsteuer 86,36
------------------------------------------------------------------
Gesamtbetrag 949,99
------------------------------------------------------------------
Heizwärmebedarf:19.12 kWh/(m²a)
Klasse Heizwärmebedarf:A
Faktor Gesamtenergieeffizienz:0.83
Klasse Faktor Gesamtenergieeffizienz:A

Merkmale

  • Bezug: sofort
  • 11. Geschoss
  • Barrierefrei
  • Personenaufzug
  • Keller
  • voll klimatisiert

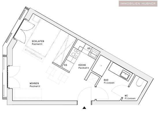
Grundrisse

Grundrisse
1 / 1

Bausubstanz und Energie

Heizwärmebedarf (HWB)

A

Gesamtenergieeffizienz (fGEE)

A
  • Baujahr2025
  • Zustand der ImmobilieNeubau, Erstbezug
  • HaustypNiedrigenergiehaus
  • HeizungsartFußbodenheizung
Immowelt logo

Mietkosten

Gesamtmiete
949,99 €
Nettokaltmiete
25,58 €/m²
767,32 €
Betriebskosten
105,94 €
Kaution
2850 €
Weitere Preisinformationen
Nettokaltmiete: 767,32 EUR

Lage

address-icon
Donau-City-StraßeWien (1220)

Weitere Informationen

Sonstiges
Video DC Flats - https://youtube.com/shorts/uV9ps2K_EDM?feature=share Stichworte Anzahl der Badezimmer: 1, Anzahl der separaten WCs: 1, Bundesland: Wien

Weitere Services

Lust auf eine Besichtigung?
Eine Frage zur Immobilie?
Mit einer persönlichen Nachricht hast du bessere Chancen auf eine Antwort.
Mit der Nutzung der oben angegebenen Telefonnummer oder durch Klicken auf „Kontaktieren“ akzeptierst Du die Allgemeinen Nutzungsbedingungen, denen Du jederzeit widersprechen kannst. Weitere Informationen zum Datenschutz

Über den Anbieter

Fred-Zinnemann-Platz 4/Top 3.2, 1030 WIEN
partner badge
Partnerschaft
Herr Robert FriedDein Kontakt

Weitere Unterlagen

Online-ID: 25J7S73ZHJJT
Referenznummer: 3610/8100
Wie zufrieden bist du mit dieser Seite (nicht mit der Immobilie selbst)?