

Immobilien Kontor Nord
Herr Christian Trems
038 ···
Nr. anzeigenPreise & Kosten
Provision für Käufer
3,57 % inkl. MwSt.
Lage
Bartelshagen I ist ein kleiner, ruhiger Ortsteil der Stadt Marlow in Mecklenburg-Vorpommern - ein echter Geheimtipp für alle, die das Leben im Grünen lieben und dabei nicht auf gute Erreichbarkeit verzichten möchten.
Umgeben von weiten Feldern, Wiesen und kleinen Wäldern bietet Bartelshagen I eine naturnahe Wohnlage...
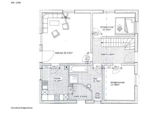
Das Haus
Kategorie
Einfamilienhaus
Baujahr
2005
Bezug
sofort
Energie & Heizung
Warum sehe ich diese Anzeige? – Du siehst diese Anzeige basierend auf Ihrer Navigation auf unserer Website und den Suchkriterien, die du verwendet hast.
Energieausweistyp
Verbrauchsausweis
Gebäudetyp
Wohngebäude
Baujahr laut Energieausweis
2005
Wesentliche Energieträger
GAS
Gültigkeit
bis 04.03.2035
Effizienzklasse
C
Endenergieverbrauch
79,80 kWh/(m²·a)
Weitere Energiedaten
Energieträger
Gas
Details
Objektbeschreibung
Ein Zuhause mit Herz - Bungalow mit Potenzial in Bartelshagen I bei Marlow
Manchmal begegnet einem ein Ort, der sich sofort richtig anfühlt. Ein Haus, das nicht einfach nur vier Wände bietet, sondern Geborgenheit. Genau so ein Ort ist dieser liebevoll gepflegte Bungalow in Bartelshagen I bei Marlow - ruhig gelegen, umgeben...
Ausstattung
- Massive Bauweise
- Baujahr 2005
- PKW-Stellplatz auf dem Grundstück
- Ausbaureserve im Dachgeschoss
Weitere Informationen
Sonstiges
Haftungsausschluss: Die hier gemachten Angaben zur Immobilie beziehen sich größtenteils auf Angaben des Eigentümers, die Firma Immobilien Kontor Nord übernimmt für die Richtigkeit der Angaben keine Haftung. Alle Angaben sind durch den Interessenten/ Käufer selbst zu prüfen. Bei den Maßangaben der Wohn- und...
Anbieter der Immobilie

Online-ID: 2l5js5x
Referenznummer: IKN-2199
Finde Angebote wie dieses
Hier geht es zu unserem Impressum, den Allgemeinen Geschäftsbedingungen, den Hinweisen zum Datenschutz und nutzungsbasierter Online-Werbung.