

Papst Immobilien GmbH
Herr Patrick Großschädl
065 ···
Nr. anzeigenPreise & Kosten
Provision für Käufer
3 % zzgl. 20% MwSt.
Die Wohnung
Wohnungslage
3. Geschoss
Wohnanlage
Energie & Heizung
Warum sehe ich diese Anzeige? – Du siehst diese Anzeige basierend auf Ihrer Navigation auf unserer Website und den Suchkriterien, die du verwendet hast.
Heizwärmebedarf (HWB)
115,20 kWh/(m²·a)
Gesamtenergieeffizienz (fGEE)
1,67
Weitere Energiedaten
Energieträger
Fernwärme
Details
Objektbeschreibung
Diese charmante Wohnung im beliebten Bezirk Jakomini bietet Ihnen ein ideales Investment. Dank der zentralen Lage in der Steyrergasse profitieren Sie in der Vermietung von einer hervorragenden Anbindung sowie allen Vorzügen der städtischen Infrastruktur.
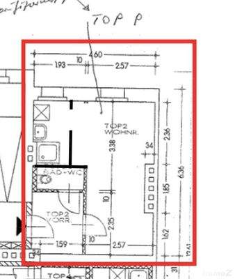
Raumaufteilung: Eingangsbereich/Vorraum Wohn-Ess-Küche Badezimmer...
Preisinformation
Verhandlungsbasis
Weitere Informationen
Stichworte
Gesamtfläche: 25,09 m², Anzahl der Badezimmer: 1, Anzahl der separaten WCs: 1, Anzahl der Wohneinheiten: 13, Bundesland: Steiermark, 4 Etagen
Anbieter der Immobilie
Papst Immobilien GmbH
Grazer Straße 48, 8101 Gratkorn

Online-ID: 2l5lr5e
Referenznummer: O2100164165
Finde Angebote wie dieses
Günstige Immobilienfinanzierung einfach online berechnen
Persönliches Angebot berechnenWarum sehe ich diese Werbung? – Du siehst diese Werbung basierend auf Deiner Navigation auf unserer Website und der von Dir verwendeten Suchkriterien.
Diese Werbung wird bezahlt von durchblicker
Werbung melden
Hier geht es zu unserem Impressum, den Allgemeinen Geschäftsbedingungen, den Hinweisen zum Datenschutz und nutzungsbasierter Online-Werbung.