
Deutsche Bank Immobilien GmbH
Herr Daniel Knauer
033 ···
Nr. anzeigenPreise & Kosten
Provision für Käufer
3,57 % inkl. MwSt.
Lage
Die nordöstlich der Berliner Stadtgrenze liegende Stadt Bernau mit ihrem schönen historischen Stadtkern und der Bernauer Stadtmauer gehört zum Landkreis Barnim des Landes Brandenburg. Bernau hat ca. 43.500 Einwohner und besteht aus mehreren Stadtteilen.
Vom fußläufig entfernten Bahnhof Bernau und S Bernau aus gelangt...
Das Haus
Kategorie
Reihenendhaus
Baujahr
1996
Derzeitige Nutzung
vermietet
Energie & Heizung
Warum sehe ich diese Anzeige? – Du siehst diese Anzeige basierend auf Ihrer Navigation auf unserer Website und den Suchkriterien, die du verwendet hast.
Energieausweistyp
Verbrauchsausweis
Gebäudetyp
Wohngebäude
Baujahr laut Energieausweis
1996
Wesentliche Energieträger
Fernwärme
Gültigkeit
16.08.2023 bis 16.08.2033
Effizienzklasse
A+
Endenergieverbrauch
17,23 kWh/(m²·a)
Weitere Energiedaten
Haustyp
Massivhaus
Energieträger
Blockheizkraftwerk, Fernwärme
Details
Objektbeschreibung
Für weitere Bilder und Unterlagen fordern Sie bitte unser Online-Exposé an.
Dieses gepflegte Reiheneckhaus aus dem Jahr 1996 befindet sich in einer beliebten, grünen Wohngegend von Bernau und bietet mit ca. 104,8 m² Wohnfläche inkl. Terrasse, drei (ehemals 4) Zimmern sowie einem voll ausgebauten Keller ein ideales...
Ausstattung
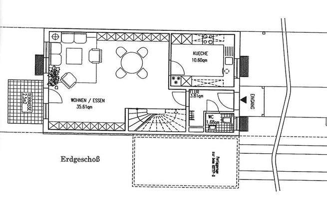
Erdgeschoss (ca. 54,2 m²)::
- Großzügiger Wohn- und Essbereich (35,61 m²) mit direktem Zugang zur 10m² Südwest-Terrasse
- Separate Küche (10,60 m²)
- Gäste-WC und ein praktischer Eingangsflur
Dachgeschoss (ca. 48,1 m²):
- Elternschlafzimmer (13,59 m²)
- Ein zusammengelegtes (ehemals zwei...
Preisinformation
Ist-Mieteinnahmen pro Jahr: 10.902,00 EUR
Weitere Informationen
Sonstiges
Jetzt attraktive Finanzierungskonditionen sichern!
Unsere Spezialistin der Finanzberatung Angelika Hannemann erstellt Ihnen gern ein maßgeschneidertes Angebot. Sprechen Sie uns an.
E-Mail: angelika.hannemann@db.com
Mobil: 0171 5168873
Alle Angaben basieren auf Auskunft unserer...
Anbieter der Immobilie
Deutsche Bank Immobilien GmbH
Berliner Straße 69, 16321 Bernau bei Berlin
Online-ID: 2l5n95k
Referenznummer: 43130102-120953
Finde Angebote wie dieses
Hier geht es zu unserem Impressum, den Allgemeinen Geschäftsbedingungen, den Hinweisen zum Datenschutz und nutzungsbasierter Online-Werbung.