Immovent GmbH

Frau Christina Dobnikar

PROVISIONSFREI - SANIERT - ERSTBEZUG: helle und freundliche 3-Zimmerwohnung mit Balkon und zusätzlichen GOODIES!

€ 279.000
Kaufpreis
k.A.
Wohnfläche
3
Zimmer
Finanzierung berechnen mit durchblicker

Der Anbieter dieses Objekts hat gegenüber der AVIV Germany GmbH als Betreiber dieses Online-Marktplatzes erklärt, nicht als Unternehmer im Sinne des § 1 KSchG zu handeln. Die im Verbraucherschutzrecht der Union verankerten Verbraucherrechte (insbesondere Informationspflichten und Rücktritts- bzw. Widerrufsrechte) finden auf den Vertrag zwischen dem Anbieter des Objekts und Ihnen (dem Interessenten) keine Anwendung.

Gewerblicher Anbieter

Der Anbieter dieses Objekts hat gegenüber der AVIV Germany GmbH als Betreiber dieses Online-Marktplatzes erklärt, als Unternehmer im Sinne des § 1 KSchG zu handeln.

AdresseStrauchergasse
8020 Graz 
(Lend)
Auf Karte ansehen

Preise & Kosten

Kaufpreis € 279.000 Betriebskosten € 180,18 Heizkosten € 61,74

Provision für Käufer

provisionsfrei

Lage

Die Wohnung

Wohnungslage

2. Geschoss

Bezug

sofort

  • Bad mit Wanne
  • Balkon
  • offene Küche
  • Böden: Fliesenboden, Parkett
  • Zustand: Erstbezug

Wohnanlage

  • Zustand: Altbau (bis 1945)
  • Personenaufzug

Energie & Heizung

Heizwärmebedarf (HWB)

C

95,40 kWh/(m²·a)

Gesamtenergieeffizienz (fGEE)

C

1,58

Weitere Energiedaten

Energieträger

Fernwärme

Details

Objektbeschreibung

Eine sanierte Wohnung - ideal für eine Kleinfamilie
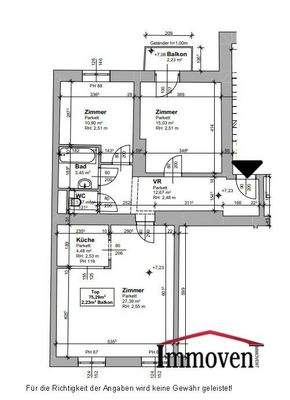
Die 3-Zimmerwohnung befindet sich im 2. Obergeschoss (mit Lift), bietet eine Nutzfläche von ca. 75 m² und einen Balkon.

Raumaufteilung:
- großes Wohnzimmer mit teils offener Küche
- 2 Zimmer (1 Zimmer mit Zugang auf den Balkon)
- Badezimmer...

Mehr anzeigen

Weitere Informationen

Stichworte
Nutzfläche: 75,29 m², Anzahl der Badezimmer: 1, Anzahl der separaten WCs: 1, Anzahl Balkone: 1, Balkon-Terrassen-Fläche: 2,23 m², Bundesland: Steiermark

Dokumente

file_pdfDokument 1angle_right

Anbieter der Immobilie

Immovent GmbH

im Durchschnitt  5,00  Sterne
(bei 2 Bewertungen)

Niederhofstraße 2, 1120 Wien

user

Frau Christina Dobnikar

Dein Ansprechpartner

Anbieter-Website Anbieter-Profil Anbieter-Impressum

Online-ID: 2l6345f

Referenznummer: OBGC202506271027303550d36c86dbf

Finde Angebote wie dieses

imageimageimage

Günstige Immobilienfinanzierung einfach online berechnen

Persönliches Angebot berechnen

Hier geht es zu unserem Impressum, den Allgemeinen Geschäftsbedingungen, den Hinweisen zum Datenschutz und nutzungsbasierter Online-Werbung.