

Blank Immobilien GmbH
Herr Philipp Blank
017 ···
Nr. anzeigenPreise & Kosten
Provision für Mieter
provisionsfrei
Warum sehe ich diese Anzeige? – Du siehst diese Anzeige basierend auf Ihrer Navigation auf unserer Website und den Suchkriterien, die du verwendet hast.
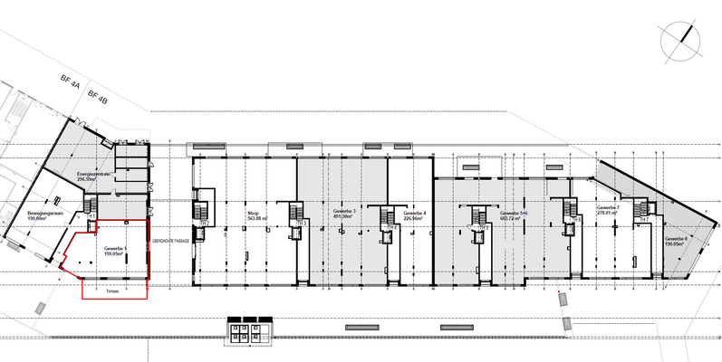
Lage
Das Neubauprojekt "Petersen Park" liegt im Hamburger Stadtteil Groß Borstel, nur wenige Autominuten vom Flughafen entfernt. Das Wohn- und Gewerbeobjekt auf dem Baufeld 4b wird nördlich durch die Papenreye und südlich durch die Stavenhagenstraße erschlossen. Kunden- und Lieferverkehre nutzen die Zufahrt von der Papenreye...
Die Ladenfläche
Baujahr
2026
Bezug
Spätsommer 2026
Erdgeschoss
Energie & Heizung
Warum sehe ich diese Anzeige? – Du siehst diese Anzeige basierend auf Ihrer Navigation auf unserer Website und den Suchkriterien, die du verwendet hast.
Gebäudetyp
Nicht-Wohngebäude
Details
Objektbeschreibung
Bei dem Neubauprojekt handelt es sich um ein modernes Hybridgebäude in energieeffizienter KfW-40-Bauweise, das Wohnraum und Gewerbe unter einem Dach vereint. Das Gebäude umfasst künftig 126 geförderte Mietwohnungen, vielfältige Büro- und Gewerbeflächen sowie eine große Tiefgarage.
Auf dem gesamten Areal entstehen knapp...
Weitere Informationen
Besichtigung
Gern stehen wir Ihnen für individuelle Besichtigungstermine zur Verfügung. Wir freuen uns auf Ihre Anfrage!
Sonstiges
Alle Angaben sind ohne Gewähr und basieren ausschließlich auf Informationen, die uns von unserem Auftraggeber zur Verfügung gestellt wurden.
Wir übernehmen keine Gewähr für die...
Anbieter der Immobilie

Online-ID: 2l6785e
Finde Angebote wie dieses
Hier geht es zu unserem Impressum, den Allgemeinen Geschäftsbedingungen, den Hinweisen zum Datenschutz und nutzungsbasierter Online-Werbung.