Netmakler - Amadeus Immobilien GmbH

Rudolf Lackner

Einfamilienhaus mit 194 m² / 10 Zimmer +ERSTBEZUG nach SANIERUNG+

€ 560.000
Kaufpreis
194 m²
Wohnfläche ca.
10
Zimmer
527 m²
Grundstücksfl. ca.
Finanzierung berechnen mit durchblicker

Der Anbieter dieses Objekts hat gegenüber der AVIV Germany GmbH als Betreiber dieses Online-Marktplatzes erklärt, nicht als Unternehmer im Sinne des § 1 KSchG zu handeln. Die im Verbraucherschutzrecht der Union verankerten Verbraucherrechte (insbesondere Informationspflichten und Rücktritts- bzw. Widerrufsrechte) finden auf den Vertrag zwischen dem Anbieter des Objekts und Ihnen (dem Interessenten) keine Anwendung.

Gewerblicher Anbieter

Der Anbieter dieses Objekts hat gegenüber der AVIV Germany GmbH als Betreiber dieses Online-Marktplatzes erklärt, als Unternehmer im Sinne des § 1 KSchG zu handeln.

AdresseStraße nicht freigegeben
2231 Strasshof an der Nordbahn 
Auf Karte ansehen

Preise & Kosten

Kaufpreis € 560.000

Provision für Käufer

3.0% plus 20.0% USt.

Lage

Stadtrand/Ortsrand, Wohngebiet, Toplage, Ruhelage, Gute Verkehrslage, Nähe öffentliche Verkehrsmittel

Das Haus

Kategorie

Einfamilienhaus

Baujahr

1971

Bezug

Sofort

  • Garten
  • 1 Stellplatz
  • Anschlüsse: Kabelanschluss
  • WG-geeignet
  • Ausstattung: neuwertig

Energie & Heizung

Heizwärmebedarf (HWB)

C

63,00 kWh/(m²·a)

Gesamtenergieeffizienz (fGEE)

C

1,14

Weitere Energiedaten

Energieträger

Gas

Details

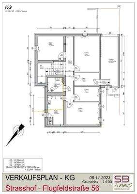
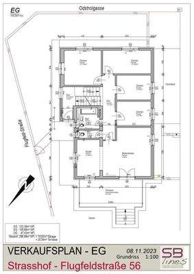
Objektbeschreibung

Adresse: 2231 Strasshof, Flugfeldstraße 56

Dieses Haus befindet sich in grüner Siedlungslage, besticht durch seine großzügige Raumaufteilung im Erdgeschoß und der offene Wohnküche mit Zugang zur Terrasse, welche direkt in den Garten mündet. Das Haus verfügt über 10 Zimmer, zwei Bäder, drei WCs, eine Wohnnutzfläche (EG...

Mehr anzeigen

Preisinformation

1 Stellplatz

Weitere Informationen

Stichworte
Garage vorhanden, Gesamtfläche: 194,00 m², Anzahl der Badezimmer: 2, Anzahl der separaten WCs: 3, Balkon-Terrassen-Fläche: 20,00 m², Kellerfläche: 102,00 m², Bundesland: Niederösterreich, 2 Etagen

Anbieter der Immobilie

Partner

Netmakler - Amadeus Immobilien GmbH

Bergmillergasse 3/3, 1140 WIEN

user

Rudolf Lackner

Dein Ansprechpartner

Anbieter-Website Anbieter-Profil Anbieter-Impressum

Online-ID: 2l67c5q

Referenznummer: OBGC20251002143645068eb891e53a7

Finde Angebote wie dieses

imageimageimage

Günstige Immobilienfinanzierung einfach online berechnen

Persönliches Angebot berechnen

Hier geht es zu unserem Impressum, den Allgemeinen Geschäftsbedingungen, den Hinweisen zum Datenschutz und nutzungsbasierter Online-Werbung.