
Stuck Immobilien Consult UG (haftungsbeschränkt)
Frau Agnieszka Stuck
Kontaktiere den Anbieter schriftlich, es ist keine Telefonnummer hinterlegt.
Preise & Kosten
Kaution
3.177 €
Warum sehe ich diese Anzeige? – Du siehst diese Anzeige basierend auf Ihrer Navigation auf unserer Website und den Suchkriterien, die du verwendet hast.
Lage
Wasserlage und vielseitigen Nahverkehrsangebot. Dank der
Bushaltestellen Amorbacher Weg und Goltzstr./Rauchstr. wird eine
direkte Verbindung in die Spandauer Innenstadt und zum Spandauer
Bahnhof im 5 Minuten-Takt gewährleistet.
Von hier aus lassen sich der Berliner Haupt bahnhof und die Berliner
Innenstadt mit...
Die Wohnung
Wohnungslage
2. Geschoss
Bezug
nach Wunsch
Wohnanlage
Energie & Heizung
Warum sehe ich diese Anzeige? – Du siehst diese Anzeige basierend auf Ihrer Navigation auf unserer Website und den Suchkriterien, die du verwendet hast.
Energieausweistyp
Bedarfsausweis
Gebäudetyp
Wohngebäude
Wesentliche Energieträger
Fernwärme
Effizienzklasse
B
Endenergiebedarf
71,00 kWh/(m²·a)
Weitere Energiedaten
Energieträger
Fernwärme
Heizungsart
Zentralheizung
Details
Objektbeschreibung
Ein Quartier für alle!
Was wäre, wenn deine neue Wohnung perfekt zu deinen Interessen passen
würde? Das haben wir uns bei der Planung des Quartiers gefragt, und
haben die Wohnungen mit besonders hochwertigen Ausstattungen
anhand von Freizeitaktiväten geplant.
Dabei hatten wir vor allem die Sportler...
Ausstattung
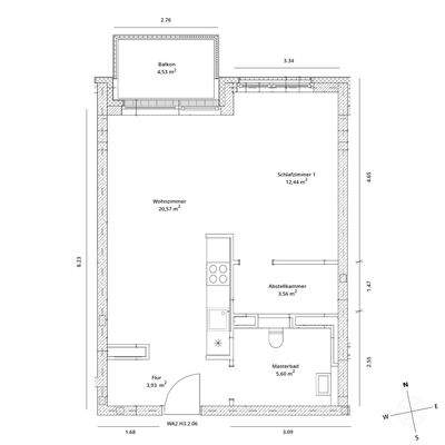
Diese attraktive Erdgeschosswohnung bietet Ihnen ein gemütliches
Zuhause mit einem kleinen, gepflegten Garten, ideal zum Entspannen im
Freien. Diese gemütliche kleine Wohnung bietet eine praktische Raumaufteilung. Die Einbauküche befindet sich im vorderen Bereich und ist leicht vom Schlafbereich abgetrennt, was für eine...
Weitere Informationen
Sonstiges
Besichtigungstermine
Bitte den Anbieter direkt über Immoscout kontaktieren ( Button Anbieter
kontaktieren). Sie erhalten dann eine Einladung via Mail zu einem
Besichtigungstermin mit dem genauen Treffpunkt. Unser Vermietungsbüro finden Sie Am Maselakepark 53, bitte eine Terminanfrage zur Besichtigung...
Dokumente
Anbieter der Immobilie
Stuck Immobilien Consult UG (haftungsbeschränkt)
Beyrodstraße 11, 12277 Tempelhof-Schöneberg
Frau Agnieszka Stuck
Dein Ansprechpartner
Kontaktiere den Anbieter schriftlich, es ist keine Telefonnummer hinterlegt.
Online-ID: 2l67l5m
Referenznummer: WA2 1ZW Typ2
Finde Angebote wie dieses
Hier geht es zu unserem Impressum, den Allgemeinen Geschäftsbedingungen, den Hinweisen zum Datenschutz und nutzungsbasierter Online-Werbung.