
immobilienbüro albert steiert gmbh
Herrn Albert Steiert
+49 ···
Nr. anzeigenPreise & Kosten
Provision für Mieter
3,57 Monatskaltmieten inkl. 19 % MwSt.
Warum sehe ich diese Anzeige? – Du siehst diese Anzeige basierend auf Ihrer Navigation auf unserer Website und den Suchkriterien, die du verwendet hast.
Lage
Tennenlohe ist ein Erlanger Stadtteil und liegt im Süden von Erlangen.
Gute Verkehrsanbindung in die Stadt sind gegeben und ein Autobahnanschluss befindet sich in unmittelbarer Umgebung. Der Nürnberger Flughafen ist in ca. 15 Autominuten erreichbar.
Büro-/Praxisfläche
Baujahr
1992
Details
Objektbeschreibung
Das 3-geschossige Bürogebäude befindet sich im Erlanger Stadtteil Tennenlohe. Es wurde 1992 erbaut und im Jahre 2011 modernisiert. Die zu vermietenden Büroräume liegen im 2. Obergeschoss. Durch Gips-Karton-Ständerwände sind die Büroräume auch variierbar. Geheizt wird über eine Gas Zentralheizung.
Gewerbeflächen sind...
Ausstattung
Küche, Empfangsbereich werden gemeinschaftlich genutzt.
Je zwei Damen- und Herren- WC sind vorhanden.
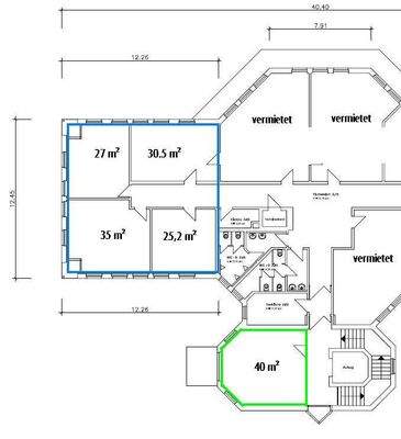
Der m²-Mietpreis beinhaltet die umgelegten Nebenflächen und den pauschalierten Stromverbrauch.
Die Berechnung der Miete erfolgt deshalb nach den Nettobüroflächen. s.Plan
Weitere Informationen
Ortsbeschreibung
Die mittelfränkische Großstadt Erlangen hat sich in den letzten Jahren nicht nur zu einer Top-Adresse in Bayern, sondern auch in der gesamten Bundesrepublik Deutschland etabliert. Seit Jahren findet man Sie in den Top 10 der kaufkräftigsten Städte Deutschlands. So belegte die angehende Hauptstadt der...
Anbieter der Immobilie
Online-ID: 2l69j5v
Referenznummer: G1470013M
Finde Angebote wie dieses
Hier geht es zu unserem Impressum, den Allgemeinen Geschäftsbedingungen, den Hinweisen zum Datenschutz und nutzungsbasierter Online-Werbung.