
Raiffeisen Immobilien Kärnten GmbH
Frau Silvia Malloth
+43 ···
Nr. anzeigenPreise & Kosten
Provision für Käufer
3% des Kaufpreises plus 20% USt.
Das Haus
Baujahr
2025
Bezug
Nach Vereinbarung
Energie & Heizung
Warum sehe ich diese Anzeige? – Du siehst diese Anzeige basierend auf Ihrer Navigation auf unserer Website und den Suchkriterien, die du verwendet hast.
Weitere Energiedaten
Energieträger
Elektro
Heizungsart
Fußbodenheizung
Details
Objektbeschreibung
Kurzbeschreibung
Willkommen im Bergdorf Hochrindl - Ihr Chalettraumin den Alpen
Inmitten des idyllischen Ski- und WanderparadiesesHochrindl entstehen 14 charmante Alpenchalets mit atemberaubendem Blick über das wunderschöne Kärntner Land.
Ein Ort, an dem Sie Entspannung,Natur und Investition auf einzigartige Weise...
Ausstattung
geplant ist die Errichtung von 13 Chalets und einem Gastronomiebereich in Haus 14 die Erschließung erfolgt über eine befestigte, asphaltierte Zufahrtsstraße alle Freiflächen werden begrüntdie gesamte Anlage ist an das Kanal-, Wasser- und Stromnetz angeschlossen. Die Zufahrten erfolgen über das öffentliche Gut. Die...
Preisinformation
1 Stellplatz
Weitere Informationen
Stichworte
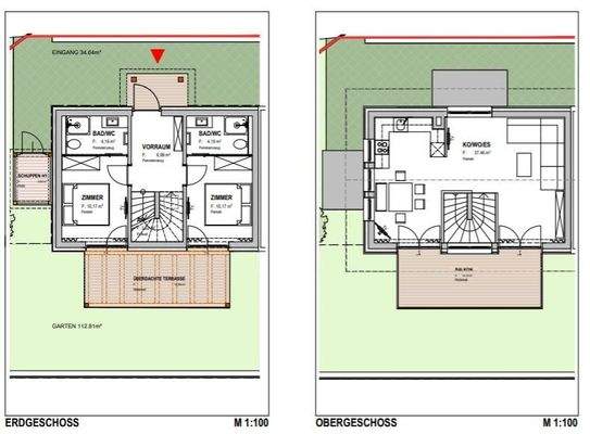
Anzahl der Badezimmer: 1, Anzahl der separaten WCs: 1, Anzahl Balkone: 1, Anzahl Terrassen: 1, Gartenfläche: 112,81 m², Bundesland: Kärnten, 2 Etagen
Anbieter der Immobilie
Online-ID: 2l6gn57
Referenznummer: 00150010070001
Finde Angebote wie dieses
Günstige Immobilienfinanzierung einfach online berechnen
Persönliches Angebot berechnenWarum sehe ich diese Werbung? – Du siehst diese Werbung basierend auf Deiner Navigation auf unserer Website und der von Dir verwendeten Suchkriterien.
Diese Werbung wird bezahlt von durchblicker
Werbung melden
Hier geht es zu unserem Impressum, den Allgemeinen Geschäftsbedingungen, den Hinweisen zum Datenschutz und nutzungsbasierter Online-Werbung.