

Roy Immobilien Management
Frau Sabine Bullermann
049 ···
Nr. anzeigenPreise & Kosten
Provision für Käufer
3,57 % inkl. MwSt. jeweils vom Käufer und Verkäufer verdient und fällig mit Kaufvertragsunterzeichnung
Lage
Diese Eigentumswohnungen befinden sich in Moormerland OT Neermoor.
Moormerland bietet eine sehr gute Infrastruktur. Hier finden Sie alle Einkaufsmöglichkeiten, eine gute Ärzte- Versorgung und alle Schulformen.
Durch die gute Verkehrsanbindung (B70 oder A31) gelangen Sie schnell in das quirlige Zentrum von Leer (ca. 10...
Die Wohnung
Wohnungslage
1. Geschoss
Wohnanlage
Energie & Heizung
Warum sehe ich diese Anzeige? – Du siehst diese Anzeige basierend auf Ihrer Navigation auf unserer Website und den Suchkriterien, die du verwendet hast.
Energieausweistyp
Verbrauchsausweis
Gebäudetyp
Wohngebäude
Wesentliche Energieträger
Gas
Gültigkeit
20.12.2024 bis 19.12.2034
Effizienzklasse
A
Endenergieverbrauch
34,60 kWh/(m²·a)
Weitere Energiedaten
Energieträger
Gas
Heizungsart
Zentralheizung
Details
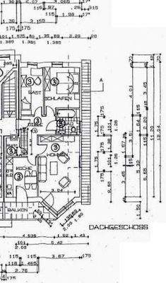
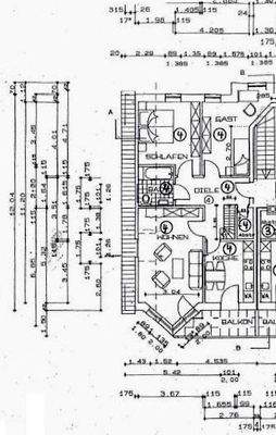
Objektbeschreibung
In zentraler und dennoch ruhiger Lage stellen wir Ihnen hier ein Wohnungs-Duo von 2 getrennten Wohneinheiten im 1. Stock eines 4-Parteien-Hauses vor.
Verteilt auf 128qm Wohnfläche befinden sich gesamt 6 Zimmer, 2 Küchen und 2 Badzimmern. Hinzu kommt: ein Maisonette-Zimmer von 32qm (im Spitzboden der linken Wohneinheit...
Ausstattung
-die Heizung ist von 2021
-beide Wohneinheiten sind mit Fliesen oder Laminat ausgestattet
-Ihren PKW parken Sie auf eigenen Stellplätzen
-Die Immobilie befindet sich in einer ruhigen Wohnsiedlung, der Hauptstraße abgewandt (kein Durchgangsverkehr)
-Zu dem 4-Parteien-Haus gehören pro Wohnungseinheit jeweils ein ca...
Weitere Informationen
Sonstiges
Nicht alle Objekte in unserem Bestand sind veröffentlicht!
Rufen Sie uns kostenfrei unter 0800 / 77 88 77 99 an, dann suchen wir gerne aktiv nach Ihrer Wunschimmobilie.
Alle Informationen beruhen auf den Angaben der Eigentümer, daher keine Haftung für Vollständigkeit und Richtigkeit
Anbieter der Immobilie

Online-ID: 2l6jq5b
Finde Angebote wie dieses
Hier geht es zu unserem Impressum, den Allgemeinen Geschäftsbedingungen, den Hinweisen zum Datenschutz und nutzungsbasierter Online-Werbung.