




Sonstiges zum Kauf980000 €720 €/m²10 Zimmer • 800 m² • 2.882 m² Grundstück
980000 €
720 €/m²
10 Zimmer • 800 m² • 2.882 m² Grundstück
Historisches Schulgebäude mit Potenzial für moderne Ferienwohnungen!
Merkmale
- 2.882 m² Grundstück
- Kelleranteil
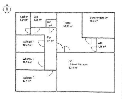
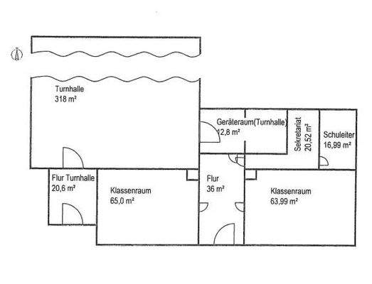
Grundrisse
Grundrisse
1 / 9
Realisiere Dein Projekt
Bausubstanz und Energie
Energieausweis
Endenergieverbrauch (Wärme)
Endenergieverbrauch (Strom)
- Baujahr1900
- Zustand der ImmobilieMassivhaus
Preisdetails
Kaufpreis
980000 €
719,63 €/m²
Provision für Käufer
Käuferprovision beträgt 3,57 % (inkl. MwSt.) des beurkundeten Kaufpreises
Geschätzte Gesamtkosten
1.014.986 €1
Kaufpreis
980.000 €
Kaufnebenkosten
34.986 €
2Provision für Käufer (3,57%)
34.986 €
1Der angezeigte Wert ist eine automatisch berechnete Schätzung von immowelt.
2Bei den Angaben handelt es sich um ortsübliche Werte. Individuelle Kosten können abweichen.
Lage

Schwarzatal / OT Mellenbach (98744)
Der Anbieter hat die genaue Adresse nicht freigegeben
Weitere Informationen
Weitere Services
Lust auf eine Besichtigung?
Eine Frage zur Immobilie?
Ăśber den Anbieter
KettenstraĂźe 7, 99084 Erfurt
Partnerschaft
Frau Ute PesselDein Kontakt
Online-ID: 2l6jz5y
Referenznummer: 25 478 953a

VON POLL COMMERCIAL Erfurt - IMMOADLER INVEST GmbH
Wie zufrieden bist du mit dieser Seite (nicht mit der Immobilie selbst)?

