
MHW Haas Wohnbau GmbH
Frau Yvonne Geyer-Haas
091 ···
Nr. anzeigenPreise & Kosten
Provision für Käufer
Bitte beachte, das Angebot beinhaltet bei Vertragsabschluss die Zahlung einer Provision. Weitere Informationen erhältst Du vom Anbieter.
Lage
Das Grundstück besticht durch seine zentrale und dennoch ruhige Lage. Einkaufsmöglichkeiten, Cafés und Restaurants sind in nur wenigen Gehminuten erreichbar. Die nächste Bushaltestelle ist ca. 3 Minuten entfernt, der Fürther Hauptbahnhof in rund 7 Minuten. Schulen und Kitas befinden sich ebenfalls in der Nähe – perfekt für...
Das Haus
Baujahr
2026
Energie & Heizung
Warum sehe ich diese Anzeige? – Du siehst diese Anzeige basierend auf Ihrer Navigation auf unserer Website und den Suchkriterien, die du verwendet hast.
Weitere Energiedaten
Haustyp
KfW 55, Massivhaus
Energieträger
Elektro
Heizungsart
Fußbodenheizung, Luft-/Wasser-Wärmepumpe
Details
Objektbeschreibung
Objektbeschreibung
Auf diesem Grundstück in Fürth errichten wir für Sie zwei Doppelhaushälften in Massivbauweise.
Der Kaufpreis beinhaltet das Grundstücks und die schlüsselfertige Doppelhaushälfte.
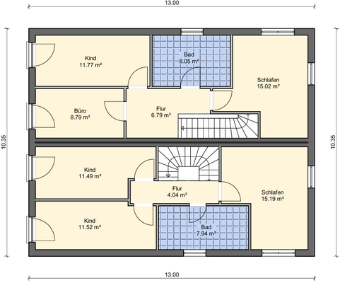
Das Haus hat 101m² Wohnfläche (WoFIV).
Hier angeboten ist die untere Hälfte. Die obere Hälfte mit mehr...
Weitere Informationen
Inklusivleistungen
-Vermessung des Grundstücks (Höhenplan)
-Architektenleistungen/Ingenieursleistungen
-Bauantrag
-Bodengutachten
-Gründung/Frostschürze unter der Bodenplatte
-Bodenplatte
-30cm dickes massives Mauerwerk
-Gebaut nach GEG (KFW 55)
-4-Fache Mehrspartenhauseinführung
-Rollläden im...
Anbieter der Immobilie
MHW Haas Wohnbau GmbH
Im Gewerbepark 20, 91093 Heßdorf
Online-ID: 2l6kq5g
Finde Angebote wie dieses
Hier geht es zu unserem Impressum, den Allgemeinen Geschäftsbedingungen, den Hinweisen zum Datenschutz und nutzungsbasierter Online-Werbung.