
VR IMMOBILIEN GmbH
Herr Maximilian Krause
038 ···
Nr. anzeigenPreise & Kosten
Provision für Käufer
3,57 % inkl. MwSt.
Unser Immobilienbüro hat einen provisionspflichtigen Maklervertrag mit dem Verkäufer in gleicher Höhe abgeschlossen.
Lage
Lage - ländlich ruhig und dennoch stadtnah:
Proseken ist ein Ortsteil der Gemeinde Gägelow und liegt direkt an der südwestlichen Grenze der Hansestadt Wismar. Die Ostsee erreichen Sie in wenigen Minuten, ebenso Einkaufsmöglichkeiten, Freizeitangebote und ärztliche Versorgung. In Proseken selbst finden Sie eine gute...
Das Haus
Kategorie
Bungalow
Baujahr
2023
Energie & Heizung
Warum sehe ich diese Anzeige? – Du siehst diese Anzeige basierend auf Ihrer Navigation auf unserer Website und den Suchkriterien, die du verwendet hast.
Energieausweistyp
Bedarfsausweis
Gebäudetyp
Wohngebäude
Baujahr laut Energieausweis
2022
Wesentliche Energieträger
Gas
Gültigkeit
01.11.2023 bis 01.11.2033
Effizienzklasse
B
Endenergiebedarf
66,40 kWh/(m²·a)
Weitere Energiedaten
Haustyp
Massivhaus
Energieträger
Gas
Heizungsart
Fußbodenheizung, Zentralheizung
Details
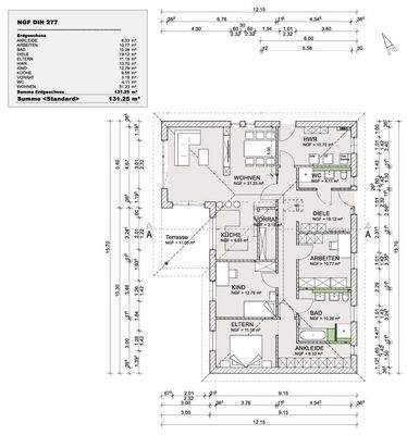
Objektbeschreibung
Sie suchen ein modernes, energieeffizientes Zuhause in ruhiger Lage - mit guter Anbindung an Stadt und Meer? Dann ist dieser im Jahr 2023 errichtete Winkelbungalow in Proseken genau das Richtige für Sie!
Das stilvolle Einfamilienhaus in Massivbauweise vereint zeitgemäßen Wohnkomfort mit attraktiver Architektur und bietet...
Ausstattung
- großzügiges Wohnzimmer mit bodentiefen Fenstern
- offene Küche mit moderner Einbauküche und Vorratsraum
- Vollbad ist mit Dusche und Fenster
- Gäste-WC mit Dusche und Fenster
- Hauswirtschaftsraum mit Waschmaschinenanschluss sowie Hausanschlüsse
Weitere Informationen
Sonstiges
Wir weisen darauf hin, dass unsere Angebotsangaben auf uns erteilter Informationen basieren und deshalb für deren Richtigkeit und Vollständigkeit keine Haftung übernommen wird. Unsere Angaben sind freibleibend und unverbindlich. Irrtum und Zwischenverkauf bleibt ausdrücklich...
Anbieter der Immobilie
VR IMMOBILIEN GmbH
Buchbinderstraße 19, 18055 Rostock
Online-ID: 2l6lm54
Referenznummer: 1648
Finde Angebote wie dieses
Hier geht es zu unserem Impressum, den Allgemeinen Geschäftsbedingungen, den Hinweisen zum Datenschutz und nutzungsbasierter Online-Werbung.