
Immobilienfachgeschäft - eine Marke der Finanzfachgeschäft GmbH
Tino Retzlaff
+49 ···
Nr. anzeigenPreise & Kosten
Provision für Käufer
3,57 %
Lage
Das Ein-/Zweifamilienhaus befindet sich in ruhiger Wohnlage im Ortsteil Niederspier der Kleinstadt Greußen, gelegen im südlichen Teil des Kyffhäuserkreises in Nordthüringen. Die Umgebung bietet eine angenehme Mischung aus ländlicher Idylle und guter Infrastruktur - ideal für Familien.
Verkehrsanbindung
Greußen...
Das Haus
Kategorie
Einfamilienhaus
Baujahr
1908
Bezug
sofort
Energie & Heizung
Warum sehe ich diese Anzeige? – Du siehst diese Anzeige basierend auf Ihrer Navigation auf unserer Website und den Suchkriterien, die du verwendet hast.
Energieausweistyp
Verbrauchsausweis
Gebäudetyp
Wohngebäude
Baujahr laut Energieausweis
1908
Wesentliche Energieträger
Öl
Effizienzklasse
C
Endenergieverbrauch
93,90 kWh/(m²·a)
Weitere Energiedaten
Energieträger
Öl
Details
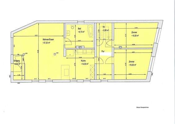
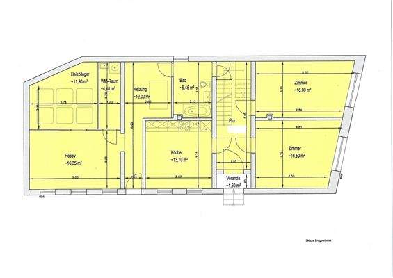
Objektbeschreibung
Willkommen in Ihrem neuen Zuhause!
Dieses gepflegte Ein-/Zweifamilienhaus bietet mit ca. 218?m² Wohnfläche, viel Platz für Familien, Mehrgenerationenwohnen oder Wohnen & Arbeiten unter einem Dach.
Das Anwesen liegt in einer ruhigen Anliegerstraße und überzeugt durch eine großzügige Raumaufteilung, zwei...
Ausstattung
Ausstattungshighlights
Zwei abgeschlossene Wohneinheiten - jeweils mit eigener Einbauküche
Großzügiger Wohn-Essbereich mit offener Küche & Panoramafenster
Ausgebautes Dachgeschoss mit Panoramablick
Große Scheune - ideal für Handwerk, Lager oder Tierhaltung
Gewächshaus zur Selbstversorgung mit Obst &...
Weitere Informationen
Sonstiges
Die Immobilie wird inklusive zwei vollständig ausgestatteter Einbauküchen angeboten. Damit ist das Haus sofort bezugsfertig und bietet Ihnen zusätzlichen Komfort ohne weiteren Planungsaufwand.
Für beide Küchen zusammen fällt ein zusätzlicher Kaufpreis von 5.000?EUR an, der zum Kaufpreis der Immobilie...
Dokumente
Online-ID: 2l6ly5u
Referenznummer: 154224
Finde Angebote wie dieses
Hier geht es zu unserem Impressum, den Allgemeinen Geschäftsbedingungen, den Hinweisen zum Datenschutz und nutzungsbasierter Online-Werbung.