
ohne-makler.net - Immobilien selbst vermarkten
Privat vom Eigentümer
Kontaktiere den Anbieter schriftlich, es ist keine Telefonnummer hinterlegt.
Preise & Kosten
Provision für Käufer
provisionsfrei
Lage
Das Haus befindet sich in unmittelbarer Waldrandlage, trotzdem nur 2,5 Kilometer von der Innenstadt Lüneburgs entfernt. Der Stadtteil Wilschenbruch liegt südlich der Innenstadt, ist locker bebaut und grenzt an ein Naturschutzgebiet. Durch die dennoch zentrale Lage sind Schulen, Kindergärten, Supermärkte, Ärzte, öffentl...
Das Haus
Kategorie
Einfamilienhaus
Baujahr
2019
Bezug
nach Absprache
Energie & Heizung
Warum sehe ich diese Anzeige? – Du siehst diese Anzeige basierend auf Ihrer Navigation auf unserer Website und den Suchkriterien, die du verwendet hast.
Energieausweistyp
Bedarfsausweis
Gebäudetyp
Wohngebäude
Effizienzklasse
B
Endenergiebedarf
55,00 kWh/(m²·a)
Weitere Energiedaten
Energieträger
Gas
Heizungsart
Zentralheizung
Details
Objektbeschreibung
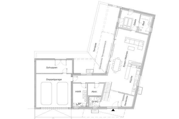
Diese außergewöhnliche Immobilie steht frei auf einem 1156 qm großen Grundstück mit teilweise altem Baumbestand. Die Architektur ist modern, die Ausstattung hochwertig. Mittelpunkt des Hauses ist der ca. 60 qm große Wohn-Essbereich im Erdgeschoss mit Blick Richtung Südwesten in den Garten durch eine 8 m breite Fensterfront....
Ausstattung
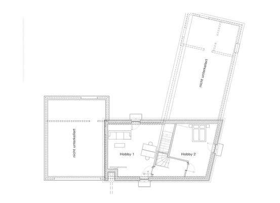
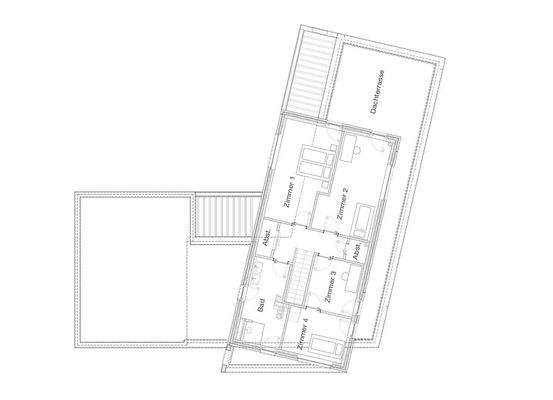
Terrasse, Garten, Keller, Dachterrasse, Vollbad, Duschbad, Einbauküche, Gäste-WC, Sonstiges (s. Text)
Bemerkungen:
Klare Linien ziehen sich durch das Design dieser besonderen Immobilie. Die Kombination aus wenigen warmen und kühlen Farben lässt angenehme Kontraste entstehen. Hochwertige Materialien werden Sie in...
Preisinformation
2 Stellplätze
2 Garagenstellplätze
Weitere Informationen
Sonstiges
Heizungsart: Zentralheizung
Energieträger: Gas
Makleranfragen nicht erwünscht. Nach § 7 UWG sind unaufgeforderte Kontaktaufnahmen durch Makler ohne ausdrückliche Einwilligung des Empfängers verboten!
ohne-makler (OM) ist weder Anbieter noch Vermittler der Immobilie. OM betreibt eine Plattform...
Anbieter der Immobilie
ohne-makler.net - Immobilien selbst vermarkten
Humboldtstr. 25 A, 21509 Glinde
Privat vom Eigentümer
Dein Ansprechpartner
Kontaktiere den Anbieter schriftlich, es ist keine Telefonnummer hinterlegt.
Online-ID: 2l6rf5m
Referenznummer: 309765
Finde Angebote wie dieses
Hier geht es zu unserem Impressum, den Allgemeinen Geschäftsbedingungen, den Hinweisen zum Datenschutz und nutzungsbasierter Online-Werbung.