
Crozilla.com
CASA BELLA NEKRETNINE
+38 ···
Nr. anzeigenPreise & Kosten
Provision für Käufer
Bitte beachte, das Angebot kann bei Vertragsabschluss die Zahlung einer Provision beinhalten. Weitere Informationen erhältst Du vom Anbieter.
Die Immobilie
Zu diesem Angebot wurden vom Anbieter keine weiteren Daten hinterlegt. Für weitere Informationen bitte den Anbieter kontaktieren.
Nach Informationen fragenDetails
Objektbeschreibung
ID CODE: 1783
Dorian Vicic, mag.oec
Direktor
Mob: +385 98 537 913
www.casabellanekretnine.hr
Marin Markovic
Direktor
Mob: +385 91 614 5103
www.casabellanekretnine.hr
Weitere Informationen
Stichworte
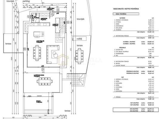
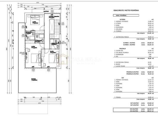
Wohnfläche: 649,00 m², 1 Etagen
Anbieter der Immobilie
Crozilla.com
Nova cesta 60, 10000 ZAGREB
Online-ID: 2l6sk5z
Referenznummer: 15508191_19
Finde Angebote wie dieses
Hier geht es zu unserem Impressum, den Allgemeinen Geschäftsbedingungen, den Hinweisen zum Datenschutz und nutzungsbasierter Online-Werbung.