

Haus zum Kauf • provisionsfrei299000 €1.980 €/m²5 Zimmer • 151 m² • 500 m² Grundstück
299000 €
1.980 €/m²
5 Zimmer • 151 m² • 500 m² Grundstück
Doppelhaus Salzburg
Merkmale
- 500 m² Grundstück
- offene KĂĽche
- AuĂźen-Stellplatz
- Gäste-WC
- Terrasse
- Badezimmer: Badewanne, Bad mit Dusche, Bad mit Fenster
- Bodenbelag: Fliesen, Parkett
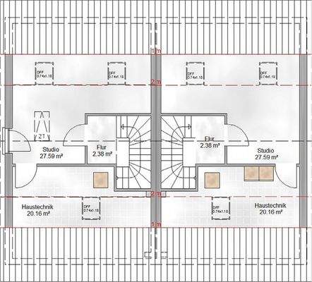
Grundrisse
Grundrisse
1 / 3
Realisiere Dein Projekt
Bausubstanz und Energie
Energieausweis
A+
- BaujahrNeubau
- Zustand der ImmobilieNeubau, Massivhaus
- HaustypKfW 55
- HeizungsartFuĂźbodenheizung
- EnergieträgerElektro, Luft-/Wasser-Wärmepumpe
Preisdetails
Kaufpreis
299000 €
1.980 €/m²
Provision für Käufer
provisionsfrei
Geschätzte Gesamtkosten
315.445 €1
Kaufpreis
299.000 €
Kaufnebenkosten
16.445 €
2Notarkosten (1,5%)
4.485 €
Grunderwerbsteuer (3,5%)
10.465 €
Grundbucheintrag (0,5%)
1.495 €
1Der angezeigte Wert ist eine automatisch berechnete Schätzung von immowelt.
2Bei den Angaben handelt es sich um ortsübliche Werte. Individuelle Kosten können abweichen.
Lage

Gangkofen (84140)
Der Anbieter hat die genaue Adresse nicht freigegeben
Weitere Informationen
Weitere Services
Lust auf eine Besichtigung?
Eine Frage zur Immobilie?
Ăśber den Anbieter
P & P Massivhaus GmbHMaklerbĂĽro
Mariakirchener StraĂźe 16, 94424 Arnstorf
Partnerschaft

Herr Mark PieslingerDein Kontakt
Online-ID: 2l6ub58


P & P Massivhaus GmbH
Wie zufrieden bist du mit dieser Seite (nicht mit der Immobilie selbst)?

