

Felder. Der Gewerbespezialist GmbH
Herr Thomas Wüstefeld
+49 ···
Nr. anzeigenPreise & Kosten
Provision für Mieter
provisionsfrei
Warum sehe ich diese Anzeige? – Du siehst diese Anzeige basierend auf Ihrer Navigation auf unserer Website und den Suchkriterien, die du verwendet hast.
Lage
Eingebettet in einem der schönsten Winkel des Alpenvorlandes, empfiehlt sich Rosenheim - als wirtschaftliches Zentrum für rund 350.000 Einwohner - seinen Besuchern mit optimalen Verkehrsanbindungen und einem hochwertigen Kultur- und Freizeitangebot zu allen Jahreszeiten.
In der Stadt Rosenheim leben ca. 60.000...
Büro-/Praxisfläche
Kategorie
Bürofläche
Baujahr
1993
Bezug
sofort verfügbar
Energie & Heizung
Warum sehe ich diese Anzeige? – Du siehst diese Anzeige basierend auf Ihrer Navigation auf unserer Website und den Suchkriterien, die du verwendet hast.
Wärme
Energieausweistyp
Bedarfsausweis
Gebäudetyp
Nicht-Wohngebäude
Baujahr laut Energieausweis
1993
Endenergiebedarf (Wärme)
46,00 kWh/(m²·a)
Weitere Energiedaten
Energieträger
Fernwärme
Details
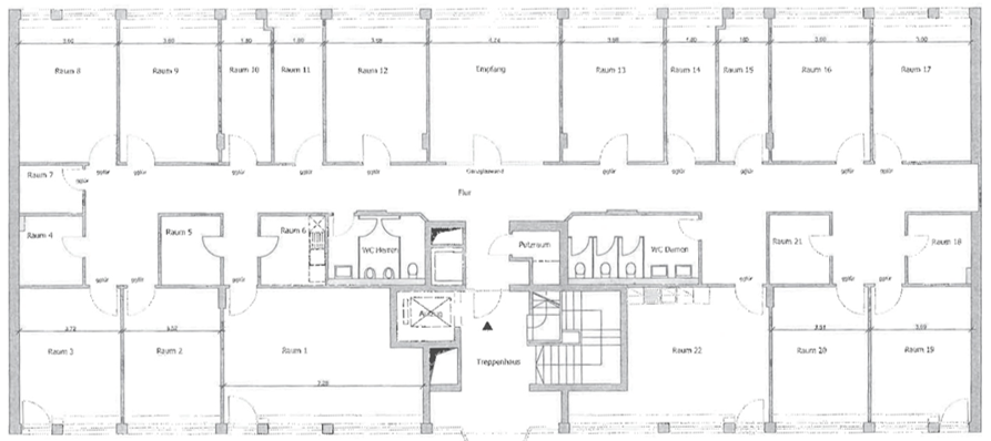
Objektbeschreibung
Sie suchen eine großzügige Bürofläche in zentrumsnaher Lage mit sehr guter Ausstattung und Erreichbarkeit? Auf ca. 481 m² Gesamtfläche können Sie Ihre unternehmerischen Pläne in die Tat umsetzen. Die Mietfläche steht Ihnen kurzfristig zur Verfügung.
- sehr gut erreichbare, zentrumsnahe Lage, Nähe Bahnhof
- sehr...
Weitere Informationen
Nutzung
Bürofläche, Schulungsfläche (Genehmigung vorhanden)
Zusatz/Über Uns
Sie möchten mehr Informationen zu diesem Objekt? Gern übersenden wir Ihnen unverbindlich unser aussagekräftiges Exposé. Ein Email oder Anruf genügt.
Die im Exposé angegebenen Daten beruhen auf Angaben des Eigentümers. Für diese...
Anbieter der Immobilie

Online-ID: 2l6yy5u
Referenznummer: A1395
Finde Angebote wie dieses
Hier geht es zu unserem Impressum, den Allgemeinen Geschäftsbedingungen, den Hinweisen zum Datenschutz und nutzungsbasierter Online-Werbung.