
ACCENTA Immobilien
Frau Martina Schütz
+43 ···
Nr. anzeigenPreise & Kosten
Provision für Käufer
3% des Kaufpreises zzgl. 20% USt.
Lage
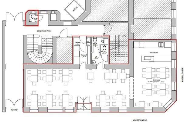
Koppstraße / Haberlgasse
Gastronomie/Hotel
Kategorie
Restaurant
Energie & Heizung
Warum sehe ich diese Anzeige? – Du siehst diese Anzeige basierend auf Ihrer Navigation auf unserer Website und den Suchkriterien, die du verwendet hast.
Heizwärmebedarf (HWB)
94,40 kWh/(m²·a)
Gesamtenergieeffizienz (fGEE)
1,95
Weitere Energiedaten
Energieträger
Gas
Heizungsart
Zentralheizung
Details
Objektbeschreibung
Zum Verkauf gelangt eine gut laufendes Gastronomielokal mit aufrechtem Pachtvertrag, befristet bis 31.06.2029.
Die Immobilie befindet sich im Erdgeschoss eines sanierten und gepflegten Gründerzeithauses an der Ecke Koppstraße / Haberlgasse und ist vor kurzem modernisiert worden.
ECKDATEN...
Weitere Informationen
Stichworte
Wohnfläche: 114,00 m², Anzahl der separaten WCs: 2, Bundesland: Wien, modernisiert: 2018, modernisiert
Anbieter der Immobilie
ACCENTA Immobilien
Georg-Sigl-Gasse 1/3, 1090 Wien
Online-ID: 2l72v5q
Referenznummer: OBGC20250919132006893dd3a10a4bf
Finde Angebote wie dieses
Hier geht es zu unserem Impressum, den Allgemeinen Geschäftsbedingungen, den Hinweisen zum Datenschutz und nutzungsbasierter Online-Werbung.