Version: 8.24.1Navigation überspringen
2.090 €
5 Zimmer  •  146 m²  •  117 m² Grundstück  •  frei ab sofort
Immowelt logo

Reihenmittelhaus zur Miete - Erstbezug
2.090 €
5 Zimmer  •  146 m²  •  117 m² Grundstück  •  frei ab sofort

Erstbezug - Neue AfA und geringe Energiekosten durch Nahwärme Reihenmittelhaus

Wir präsentieren einen exklusiven Neubau von 6 Reihenhäusern, aufgeteilt zu je 2 Dreispännern mit moderner Ausstattung. Das Objekt befindet sich gerade in der Fertigstellung, Bezugstermin ist der 01.02.2025. Die in Ziegelbauwiese errichteten Häuser werden an das Fernwärmenetz angeschlossen, bei dem hier angebotenen Objekt handelt es sich um das Reihenmittelhaus Nr.2 im vorderen, ersten
Baukörper (Dreispänner). Die Objektbeschreibung bezieht sich auf jeweils ein Haus aus dem Angebot:
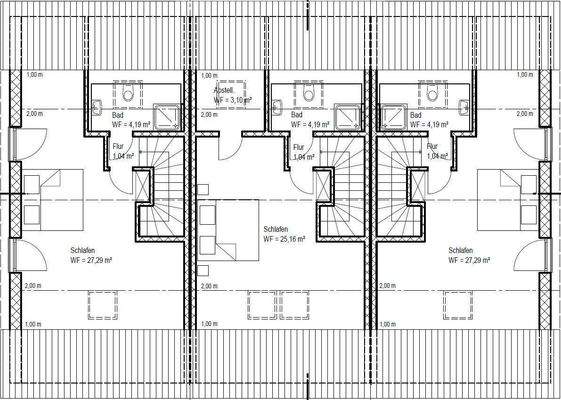
Die 5 Zimmer verteilen sich auf den großzügigen Wohn-und Essbereich mit offener Küche im Erdgeschoss, drei Schlafzimmer / Arbeitszimmer im 1.OG sowie ein großes Zimmer im Dachgeschoss mit eigenem Bad. Die Ausstattung ist modern aber zeitlos, in den Wohnräumen liegt ein hochwertiger Parkettboden. Die Bäder sind mit großformatigen, grauen Fliesen und hochwertigen Armaturen ausgestattet. In allen Räumen liegt eine Fußbodenheizung mit einzeln steuerbaren Raumthermostaten.
Die Terrasse sowie ein Großteil des Gartens haben Süd-West Ausrichtung.
Erwähnenswert sind die 3-fach verglasten Fenster mit Rollos, für eine ausführliche Baubeschreibung sprechen Sie uns gerne an.
Die Häuser verfügen über keinen Keller, die aktuellen Planungen sehen Kellerersatzräume im Außenbereich vor. Zwei Stellplätze werden über eine Einzelgarage mit Satteldach sowie einem Stellplatz umgesetzt.
Die Außenanlagen werden entsprechend der baurechtlichen Anforderungen erstellt und ansprechend bepflanzt.
Die Häuser zeichnen sich durch niedrige Energiekosten durch die Fernwärme aus.

Merkmale

  • frei ab sofort
  • 2 Geschosse
  • 117 m² Grundstück
  • Kein Keller
  • 2 Stellplätze: Garage, Außen-Stellplatz
  • Bad/WC getrennt, Gäste-WC
  • Garten
  • Terrasse

Grundrisse

Grundrisse
1 / 3

Realisiere Dein Projekt

Bausubstanz und Energie

Energieausweis

A
  • Baujahr2025
  • Zustand der ImmobilieNeubau, Massivhaus, Erstbezug
  • HeizungsartZentralheizung: Fußbodenheizung
  • EnergieträgerFernwärme
Immowelt logo

Mietkosten

Warmmiete
2.440 €
Kaltmiete
14,32 €/m²
2.090 €
Nebenkosten
100 €
Heizkosten
150 €
Zusätzliche Kosten
Miete pro Stellplatz
50 €
Kaution
6570 €

Lage

address-icon
Adelshofen (82276)
Der Anbieter hat die genaue Adresse nicht freigegeben
Die Gemeinde Adelshofen im oberbayerischen Landkreis Fürstenfeldbruck ist Mitglied der Verwaltungsgemeinschaft Mammendorf. Der Ort liegt circa 35 Kilometer westlich von München. Die Fläche beträgt in etwa 14 km². Die drei Gemeindeteile sind die Kirchdörfer Adelshofen, Luttenwang und Nassenhausen. Es gibt
die Gemarkungen Adelshofen und Luttenwang.
Die Gemeinde Adelshofen befindet sich im erweiterten Umkreis zu Fürstenfeldbruck und erhält durch die Nähe zu München Ihre Attraktivität. Gleichzeitig wird durch den ländlichen Charme der Erholungsfaktor garantiert.
Sämtliche Geschäfte des täglichen Bedarfs befinden sich im Nachbarort bzw. in unmittelbarer Umgebung vorhanden. Erwähnenswert ist ebenso der neu eingeweihte Kindergarten im Ort, der Betreuungsplätze für Familien garantiert.

Weitere Informationen

Besichtigungstermine Für Besichtigungstermine oder weitere Informationen zu diesem exklusiven Objekt schreiben Sie uns oder rufen uns unter 089/2379-3491 gerne an.

Weitere Services

Lust auf eine Besichtigung?
Eine Frage zur Immobilie?
Nachricht hinzufügen
Mit der Nutzung der oben angegebenen Telefonnummer oder durch Klicken auf „Kontaktieren“ akzeptierst Du die Allgemeinen Nutzungsbedingungen, denen Du jederzeit widersprechen kannst. Weitere Informationen zum Datenschutz

Über den Anbieter

Pollingerstrasse 3, 81377 München
partner badge
Partnerschaft
Frau Anya Nada RablDein Kontakt
Online-ID: 2l7335x
RABL IMMOBILIEN CONCEPT UG (haftungsbeschränkt)
RABL IMMOBILIEN CONCEPT UG (haftungsbeschränkt)
Nachricht hinzufügen
Mit der Nutzung der oben angegebenen Telefonnummer oder durch Klicken auf „Kontaktieren“ akzeptierst Du die Allgemeinen Nutzungsbedingungen, denen Du jederzeit widersprechen kannst. Weitere Informationen zum Datenschutz
Wie zufrieden bist du mit dieser Seite (nicht mit der Immobilie selbst)?