
Riverside Real Estate GmbH
Herr Jens Grötzner
004 ···
Nr. anzeigenPreise & Kosten
in Warmmiete enthalten
Kaution
2 Kaltmieten
Provision für Mieter
1,5 Nettokaltmieten zzgl. Mwst. zzgl. MwSt.
Warum sehe ich diese Anzeige? – Du siehst diese Anzeige basierend auf Ihrer Navigation auf unserer Website und den Suchkriterien, die du verwendet hast.
Lage
Die Immobilie befindet sich im Gewerbegebiet Oyten - einem etablierten und gut strukturierten Gewerbeareal im Landkreis Verden, direkt an der Stadtgrenze zu Bremen. Dieses Gewerbegebiet hat sich in den letzten Jahren zu einem beliebten Standort für Unternehmen aus den Bereichen Logistik, Handel, Lager und Handwerk...
Die Industriefläche
Kategorie
Lagerhalle
Baujahr
1990
Bezug
sofort
Energie & Heizung
Warum sehe ich diese Anzeige? – Du siehst diese Anzeige basierend auf Ihrer Navigation auf unserer Website und den Suchkriterien, die du verwendet hast.
Wärme
Strom
Energieausweistyp
Verbrauchsausweis
Gebäudetyp
Nicht-Wohngebäude
Wesentliche Energieträger
ERDGAS_LEICHT
Gültigkeit
bis 17.02.2031
Endenergieverbrauch (Wärme)
202,00 kWh/(m²·a)
Endenergieverbrauch (Strom)
29,60 kWh/(m²·a)
Details
Objektbeschreibung
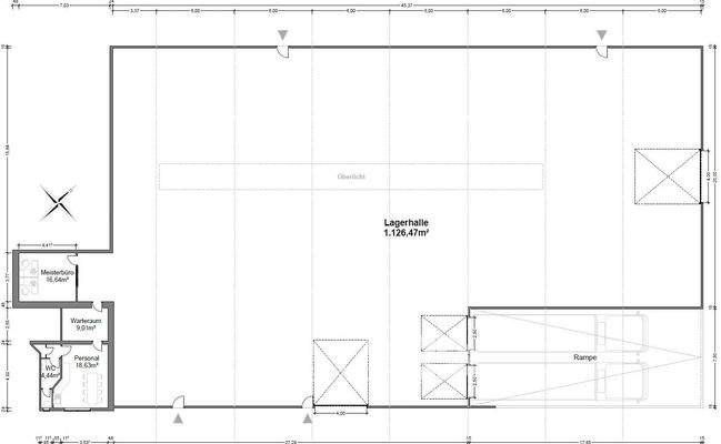
Zur Vermietung steht eine vielseitig nutzbare, beheizte Gewerbehalle im Gewerbegebiet Oyten - verfügbar ab dem 01. August 2025. Die 1990 errichtete Immobilie eignet sich ideal für Lager- und Montagearbeiten, während eine Produktion eingeschränkt möglich ist. Die Fläche der Lager- und Montagehalle beträgt ca...
Ausstattung
+ Beheizte Halle mit ca. 1.130m² Lagerfläche
+ Deckenhöhe von min. 4,80?m bis max. 6,15?m
+ 2 LKW-Rampen und 2 ebenerdige Tore für flexible Anlieferung
+ LKW-Umfahrung der Halle möglich - kein Wenden erforderlich
+ 60 kW Stromanschluss
+ Raumdeckende Netzwerkverkabelung mit Serverschrank...
Weitere Informationen
Sonstiges
Die Riverside Real Estate GmbH bietet Immobilien aller Assetklassen zum Verkauf und zur Miete an, mit Standorten in Bremen, Hameln-Pyrmont, Hannover und Umgebung.
Wenn Sie mehr über uns erfahren möchten, besuchen Sie gerne unsere Homepage unter WWW.RIVERSIDE-ESTATE.DE. Dort finden Sie ausführliche...
Anbieter der Immobilie
Riverside Real Estate GmbH
Erichstr. 16, 31785 Hameln
Online-ID: 2l76d5w
Referenznummer: 2025-498
Finde Angebote wie dieses
Hier geht es zu unserem Impressum, den Allgemeinen Geschäftsbedingungen, den Hinweisen zum Datenschutz und nutzungsbasierter Online-Werbung.