

Aengevelt Immobilien GmbH & Co KG
Frau Adina Schmidt
+49 ···
Nr. anzeigenPreise & Kosten
Provision für Mieter
provisionsfrei
Warum sehe ich diese Anzeige? – Du siehst diese Anzeige basierend auf Ihrer Navigation auf unserer Website und den Suchkriterien, die du verwendet hast.
Lage
Das HYBRICK befindet sich im Marienpark, der im südlichen Berliner Bezirk Tempelhof-Schöneberg gelegen ist. Das Areal ist Bestandteil des ehemaligen Gaswerks Mariendorf. Hier haben sich Nutzer aus den Branchen Handwerk, Produktion und Logistik niedergelassen. In der Nachbarschaft befinden sich zahlreiche gastronomische...
Büro-/Praxisfläche
Kategorie
Bürofläche
Baujahr
2024
Bezug
Q3 2024
Energie & Heizung
Warum sehe ich diese Anzeige? – Du siehst diese Anzeige basierend auf Ihrer Navigation auf unserer Website und den Suchkriterien, die du verwendet hast.
Weitere Energiedaten
Energieträger
Fernwärme
Details
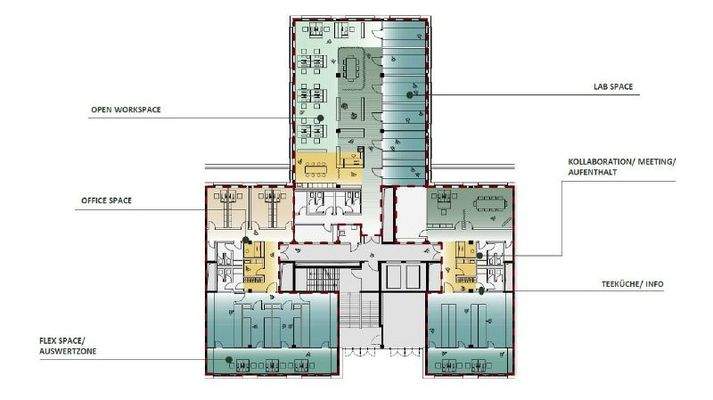
Objektbeschreibung
Das HYBRICK schafft urbanen Raum für Unternehmen und deren Produkte. Der fünfgeschossige Neubau stellt hybride Produktions-, Lager- sowie Büroflächen für die Mieter bereit. Das Objekt eignet sich insbesondere für Unternehmen aus den Bereichen Life Science, urbane Produktion und der Dienstleistungsbranche. Bei der Erstellung...
Ausstattung
Die Mietflächen werden im Standardausbau übergeben. Eine mieterspezifische Planung hinsichtlich der Ausstattung ist möglich.
Weitere Informationen
Stichworte
Stellplatz vorhanden, 5 Etagen
Sonstiges: EDV-Verkabelung
Anbieter der Immobilie
Aengevelt Immobilien GmbH & Co KG
Kennedydamm 55/Ross-Strasse, 40476 Düsseldorf

Online-ID: 2l76t5r
Referenznummer: 8263570
Finde Angebote wie dieses
Hier geht es zu unserem Impressum, den Allgemeinen Geschäftsbedingungen, den Hinweisen zum Datenschutz und nutzungsbasierter Online-Werbung.