
FECHNER IMMOBILIEN
Frau Lena Wilczek
004 ···
Nr. anzeigenPreise & Kosten
Kaution
4.800,00
Warum sehe ich diese Anzeige? – Du siehst diese Anzeige basierend auf Ihrer Navigation auf unserer Website und den Suchkriterien, die du verwendet hast.
Lage
Die attraktive Neubauwohnung befindet sich im Markt Reichertshofen - im nördlichen Ortsbereich.
+ Alle Dinge des täglichen Bedarfs können bequem innerhalb der Ortschaft oder in der näheren Umgebung erledigt werden.
+ Es gibt verschiedene Angebote an Kinderkrippen & Kindergärten im Ort.
+ Ebenso ist eine...
Die Wohnung
Kategorie
Maisonette
Wohnungslage
1. Geschoss
Bezug
sofort
Wohnanlage
Energie & Heizung
Warum sehe ich diese Anzeige? – Du siehst diese Anzeige basierend auf Ihrer Navigation auf unserer Website und den Suchkriterien, die du verwendet hast.
Weitere Energiedaten
Heizungsart
Fußbodenheizung, Luft-/Wasser-Wärmepumpe
Details
Objektbeschreibung
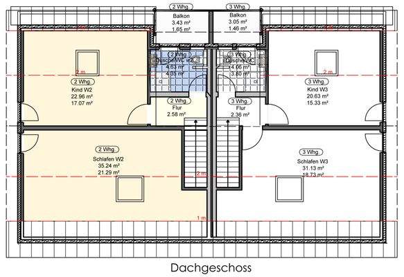
Vermietet wird eine moderne und geräumige 4-Zimmer-Maisonettewohnung mit Balkon in Reichertshofen. Das neu errichtete Gebäude überzeugt durch einen hohen Ausstattungsstandard, eine intelligente Raumaufteilung und nur drei Wohneinheiten.
+ Es erwarten Sie 4-ZKB bei circa 117,07 m² Wohnfläche.
+ Die auf den Fotos...
Ausstattung
Gerne beschreiben wir Ihnen nachstehend einige Details zur Innenausstattung der Wohnung.
Bodenbeläge:
Alle Wohn- und Schlafräume sind mit hochwertigen Vinylböden in Eiche-Echtholzoptik ausgestattet. Die restlichen Räume und die Sanitärbereiche sind mit Feinsteinzeug-Fliesen gefliest. Alle Räume verfügen über eine...
Preisinformation
2 Stellplätze, Miete je: 25,00 EUR
Weitere Informationen
Sonstiges
Es liegt ein Energieausweis zur Besichtigung vor.
Alle Angaben basieren auf Informationen unseres Auftraggebers. Wir übernehmen keine Gewähr für die Vollständigkeit, Richtigkeit und Aktualität dieser Angaben.
FOCUS-Magazin Top-Immobilienmakler:
2013, 2014, 2015, 2016, 2017, 2018, 2019, 2020...
Anbieter der Immobilie
Online-ID: 2l7775d
Referenznummer: 5155
Finde Angebote wie dieses
Hier geht es zu unserem Impressum, den Allgemeinen Geschäftsbedingungen, den Hinweisen zum Datenschutz und nutzungsbasierter Online-Werbung.