

Brunnhuber Immobilien
Frau Britta Maier-Brunnhuber - Vermietung -
097 ···
Nr. anzeigenPreise & Kosten
Provision für Mieter
provisionsfrei
Warum sehe ich diese Anzeige? – Du siehst diese Anzeige basierend auf Ihrer Navigation auf unserer Website und den Suchkriterien, die du verwendet hast.
Lage
Der Schweinfurter Hafen liegt in idealer Nähe zu Bundesstraßen und Autobahnen. Im Umfeld befinden sich Werke der Schweinfurter Großindustrie, aber auch Händler und Dienstleister diverser Branchen.
Die Industriefläche
Kategorie
Lagerhalle
Baujahr
1992
Bezug
ab sofort oder nach Vereinbarung
Derzeitige Nutzung
frei
Geschosse
2 Geschosse
Energie & Heizung
Warum sehe ich diese Anzeige? – Du siehst diese Anzeige basierend auf Ihrer Navigation auf unserer Website und den Suchkriterien, die du verwendet hast.
Weitere Energiedaten
Energieträger
Gas
Heizungsart
Zentralheizung
Details
Objektbeschreibung
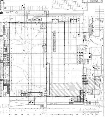
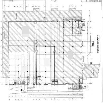
Zur Vermietung steht eine funktionale und gut zugängliche Lagerfläche mit ca. 4.400m² Gesamtfläche - verteilt auf zwei Ebenen in gepflegtem Zustand.
Flächenaufteilung:
EG (ca. 814m²): Zwei Rampen, Warenausgabe sowie Büro-, Sanitär- und Sozialräume
UG (ca. 3.588m²): Zwei Zufahrtstore, LKW-gerechte Anfahrt - Be-...
Ausstattung
- Zwei Laderampen mit elektrischen Toren
- Separate Bereiche für Anlieferung und Versand
- Sozialräume für Mitarbeitende vorhanden
- Bürofläche im Bereich Wareneingang
- Flächen vollständig beheizbar
- Nutzung auf zwei Ebenen verteilt
- Deckenlast bis 1.000kg/m²
- Zwei Lastenaufzüge (jeweils 1.000kg...
Weitere Informationen
Wir sind Dekra-Gutachter
Sie möchten verkaufen, vermieten oder vererben? Dann wenden Sie sich vertrauensvoll an unser Sachverständigenbüro im eigenen Haus.
Britta Maier-Brunnhuber ist Dekra zertifizierte Sachverständige (Gutachterin) für bebaute und unbebaute Grundstücke sowie für komplexe Wohngebäude und gewerbliche...
Anbieter der Immobilie
Brunnhuber Immobilien
Obere Straße 8, 97421 Schweinfurt

Online-ID: 2l7855t
Referenznummer: 140
Finde Angebote wie dieses
Hier geht es zu unserem Impressum, den Allgemeinen Geschäftsbedingungen, den Hinweisen zum Datenschutz und nutzungsbasierter Online-Werbung.