

Real Estate Houda eGbR
Herr Rayan Houda
017 ···
Nr. anzeigenPreise & Kosten
Provision für Käufer
provisionsfrei
Lage
Die Lage ist hervorragend: Das Objekt befindet sich in unmittelbarer Nähe zur Autobahn sowie zur Stadt Kassel, was eine schnelle Anbindung gewährleistet. Öffentliche Verkehrsmittel sind bequem erreichbar, und Einkaufsmöglichkeiten in der Umgebung sorgen für eine angenehme Arbeitsumgebung.
Büro-/Praxisfläche
Geschoss
2. Geschoss
Energie & Heizung
Warum sehe ich diese Anzeige? – Du siehst diese Anzeige basierend auf Ihrer Navigation auf unserer Website und den Suchkriterien, die du verwendet hast.
Gebäudetyp
Nicht-Wohngebäude
Details
Objektbeschreibung
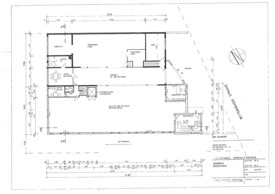
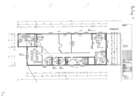
Zum Verkauf steht ein attraktives und modernisiertes Gewerbeobjekt in der Bettenhäuser Straße 34, 34266 Niestetal, bestehend aus zwei separaten Gebäuden auf einem ca. 1.950 m² großen Grundstück. Die Gesamt-Nutzfläche beträgt ca. 1.318 m².
Gebäude 1 (vorderes Gebäude):
Obergeschoss:
Freistehendes Büro mit ca. 230...
Weitere Informationen
Besichtigungstermine
Kontaktieren Sie uns gerne für weitere Informationen oder eine Besichtigung!
0176 84517549
Anbieter der Immobilie
Real Estate Houda eGbR
Christine-Brückner-Straße 7, 34266 Niestetal

Online-ID: 2l7hr59
Finde Angebote wie dieses
Hier geht es zu unserem Impressum, den Allgemeinen Geschäftsbedingungen, den Hinweisen zum Datenschutz und nutzungsbasierter Online-Werbung.