




Wohnung zur Miete399 €3 Zimmer • 58,7 m² • 4 Geschosse • frei ab sofort
399 €
3 Zimmer • 58,7 m² • 4 Geschosse • frei ab sofort
1. Kaltmiete frei ! - Geräumige und frisch renovierte 3-Zimmer-Wohnung in Bad Düben
Merkmale
- frei ab sofort
- 4 Geschosse
- separate Küche
- Keller (gesamt 7 m²)
- Parkplatz
- Glasfaser-Anschluss
- Nicht möbliert
- Badezimmer: Badewanne
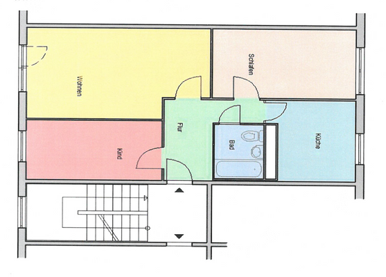
Grundrisse
Grundrisse
1 / 1
Realisiere Dein Projekt
Bausubstanz und Energie
Energieausweis
D
- Baujahr1985
- Letzte Modernisierung2023
- Zustand der Immobilieneuwertig
- HeizungsartZentralheizung: Heizkörper
- EnergieträgerFernwärme, Gas, fossile Brennstoffe
Mietkosten
Warmmiete
623,16 €
Kaltmiete
6,80 €/m²
399,16 €
Nebenkosten
106 €
Heizkosten
nicht in Nebenkosten enthalten
118 €
Zusätzliche Kosten
Miete pro Stellplatz
Kaution
1197,48 €
Lage

Hüfnermark 4 d, Bad Düben (04849)
Weitere Informationen
Weitere Services
Lust auf eine Besichtigung?
Eine Frage zur Immobilie?
Über den Anbieter
Wohnungsbaugesellschaft Bad Düben mbHMaklerbüro
Schmiedeberger Str. 56, 04849 Bad Düben
Partnerschaft

Frau Cornelia FriedrichDein Kontakt
Online-ID: 2l7jj5u
Referenznummer: 040.032.05 - 12.01.2026
Wie zufrieden bist du mit dieser Seite (nicht mit der Immobilie selbst)?




