
Evernest GmbH
Timo Hoffmann
+49 ···
Nr. anzeigenPreise & Kosten
Provision für Käufer
3.57 inkl. MwSt.
Bei Abschluss eines notariellen Kaufvertrages ist eine Käuferprovision vom Käufer in Höhe von 3.57 % inkl. MwSt. aus dem Kaufpreis fällig.
Lage
Ruhiges Wohnen, zentrale Lage - das Beste aus beiden Welten
Das Projekt entsteht in einem ruhigen und gewachsenen Wohngebiet von Emden. Die Lage überzeugt durch eine angenehme Nachbarschaft und eine sehr gute Anbindung an die städtische Infrastruktur.
- Einkaufsmöglichkeiten, Bäcker, Ärzte und Apotheken in...
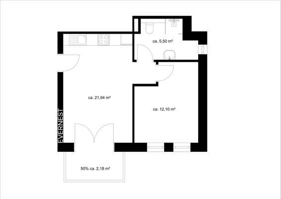
Die Wohnung
Wohnanlage
Details
Objektbeschreibung
In einem außergewöhnlichen Neubauprojekt entstehen 16 Wohneinheiten, die den Charakter eines ehemaligen Bunkers mit modernem Wohnkomfort verbinden. Die Wohnflächen reichen von ca. 40 m² bis zu großzügigen Penthouse-Wohnungen mit über 110 m². Klare Grundrisse sorgen für durchdachte Raumkonzepte, jede Einheit verfügt über...
Ausstattung
- Nachhaltige Bauweise: Moderne Holzrahmenkonstruktion mit hochwertiger Dämmung - für niedrige Energiekosten und ein angenehmes Raumklima
- Großzügige Fensterflächen: Fenster mit 3-fach-Verglasung für helle Räume und optimale Wärmedämmung
- Erneuerbare Energie: Eine Photovoltaikanlage unterstützt die Energieversorgung...
Weitere Informationen
Energiepass
Energieausweis wird bei Besichtigung vorgelegt.
Stichworte
Stellplatz vorhanden, Anzahl der Schlafzimmer: 1, Anzahl der Badezimmer: 1, Anzahl Balkone: 1, Anzahl Terrassen: 1
Anbieter der Immobilie
Online-ID: 2l7kf5p
Referenznummer: L-8WKCNDO
Finde Angebote wie dieses
Hier geht es zu unserem Impressum, den Allgemeinen Geschäftsbedingungen, den Hinweisen zum Datenschutz und nutzungsbasierter Online-Werbung.